Beschrijving
Deze aan de Vrekenhorst gelegen eengezinswoning is een kans die u beslist moet ontdekken. Een woning die nu al veel comfort biedt, maar vooral ook de potentie heeft om uit te groeien tot uw droomhuis.
De woning verwelkomt u met een verzorgde voortuin en een fraai uitzicht over de waterpartij aan de voorzijde. Achter de woning bevindt zich een praktische tuin met stenen berging en een achterom. Via het achtergelegen pad bereikt u bovendien een groen gazon met een speeltuintje – een prettige toevoeging voor gezinnen met jonge kinderen.
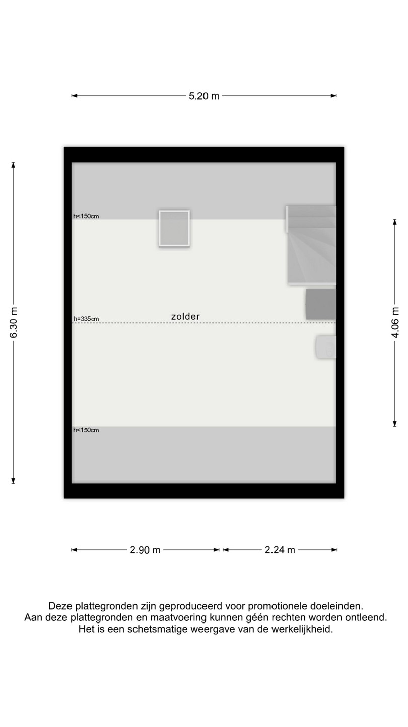
Conform NEN2580 bedraagt het woonoppervlak nu 93 m² en zijn er drie slaapkamers aanwezig. Wat deze woning bijzonder maakt, is de extra ruimte op de zolderverdieping: maar liefst 21 m² overige inpandige ruimte. Met bijvoorbeeld het plaatsen van een dakraam kan deze ruimte eenvoudig worden omgezet naar volwaardig woonoppervlak, waardoor de woning groeit naar 114 m² woonoppervlakte. De ruimte is er – de mogelijkheden liggen voor u klaar. Het perceel van 132 m² onderstreept daarbij het comfortabele karakter van de woning.
De ligging is uitstekend te noemen. In de directe omgeving vindt u sportaccommodaties, NS-station Veenendaal-West en een compleet winkelcentrum voor de dagelijkse boodschappen. Daarnaast liggen de bossen van de Utrechtse Heuvelrug op korte afstand, een ideale plek voor ontspanning en recreatie.
Kortom: een woning met solide basis, uitbreidingsmogelijkheden en een uitstekende ligging – klaar om uw woonwensen waar te maken.
Bekijk de foto’s en ervaar zelf de mogelijkheden tijdens een bezichtiging. Wij leiden u graag rond.
Indeling
Via de voortuin betreden we de hal van de woning. We komen binnen in de lichte woonkamer met uitzicht op de waterpartij aan de voorzijde. Een fijne plek om te zitten, en met het aanwezige zonnescherm blijft het ook op warme dagen comfortabel. De woonkamer biedt genoeg ruimte voor een gezellige zithoek.
Aan de achterzijde ligt de keuken. Netjes en praktisch, uitgerust met een gaskookplaat, combi-oven, afzuigkap, koelkast met vriezer en een vaatwasser. Er is voldoende ruimte voor een gezellige eethoek waar u makkelijk met het gezin of vrienden kunt tafelen. Vanuit de keuken loopt u zo de achtertuin in.
De deur in de woonkamer brengt ons naar de toiletruimte en de trapopgang naar de eerste verdieping.
Eerste verdieping
Op de eerste verdieping bevinden zich drie slaapkamers en de badkamer. De grootste slaapkamer ligt aan de voorzijde en biedt volop ruimte voor een groot bed en kastruimte. De twee overige slaapkamers zijn eveneens volwaardige kamers, ideaal voor kinderen, een werkplek of logeerkamer. In één van deze kamers is bovendien al een afvoer(pijp) aanwezig, zodat u hier eenvoudig een praktische wasruimte kunt realiseren.
De badkamer is ruim van opzet en voorzien van een ligbad, separate douche met steun, een wastafelmeubel en een toilet.
Tweede verdieping
De zolderverdieping wordt momenteel niet meegerekend in het officiële woonoppervlak, aangezien het aanwezige dakraam hiervoor niet voldoet aan de meetnorm NEN2580. De ruimte zelf is echter royaal van formaat en meet ca. 21 m². Hier kan eenvoudig een extra slaapkamer worden gerealiseerd, of zelfs een royale masterbedroom met de mogelijkheid voor een eigen badkamer.
Bijzonderheden
• Het bouwjaar van deze woning is ca. 1981.
• Energielabel B.
• Grotendeels voorzien van dubbele beglazing (met uitzondering van de voordeur).
• Verwarming en warmwater doormiddel van CV-ketel Nefit Trendline 2014.
• Deze woning beschikt over een drietal volwaardige slaapvertrekken, maar het realiseren van een vierde en/of vijfde kamer is prima denkbaar.
• De woning ligt in een autoluw gedeelte met een gemeentelijke waterpartij die het straatbeeld siert.
• Met goede uitvalswegen, een wijkwinkelcentrum en een NS-treinstation op korte afstand is deze plek toch ideaal? Bent u verzot op mountainbiken, wandelen of hardlopen? De bossen in deze omgeving zijn uitgestrekt. En erg fijn om bij in de buurt te wonen. Locatie: CHECK! Nog een extra reden om te komen kijken.
• Interesse? Wil je deze woning met eigen ogen zien? Plan dan snel een bezichtiging. Neem contact op met ons makelaarskantoor en ontdek wat deze heerlijke gezinswoning te bieden heeft!
• Deze presentatie is met zorg samengesteld op basis van de beschikbare gegevens en informatie. Desondanks kunnen aan de inhoud van deze verkooptekst geen rechten worden ontleend. Afmetingen, oppervlakten en andere details zijn indicatief en kunnen afwijken van de werkelijkheid. VC Makelaars B.V. is niet aansprakelijk voor eventuele fouten of onvolkomenheden in deze informatie.