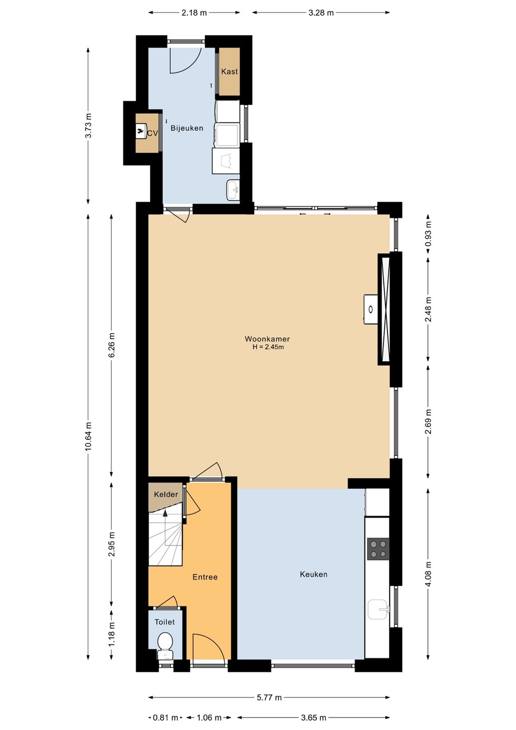
Aan de Kerkhoflaan 41 in Bennekom staat deze ruime woning op een aantrekkelijke locatie in het centrum van het dorp. Met diverse kamers, een praktische indeling en een ruime achtertuin biedt deze woning volop mogelijkheden voor comfortabel wonen, met winkels en voorzieningen binnen handbereik.
Verkocht onder voorbehoud
D
Kerkhoflaan 41, 6721 EZ Bennekom
Prijs op aanvraag
Beschrijving Kerkhoflaan 41
Kenmerken
| Type object | Woonhuis, eengezinswoning, twee onder een kap woning |
| Bouwperiode | 1958 |
| Status | Verkocht onder voorbehoud |
Kerkhoflaan 41 bekijken?
Wij plannen graag een bezichtiging met je in. Tijdens de bezichtiging vertelt een makelaar alles wat je wilt weten.