| Prijs | Prijs op aanvraag |
| Type object | Woonhuis, eengezinswoning, twee onder een kap woning |
| Perceeloppervlakte | 330 m² |
| Woonoppervlakte | 128 m² |
| Aanvaarding | In overleg |
| Status | Verkocht onder voorbehoud |
Aan de Kerkhoflaan 41 in Bennekom staat deze ruime woning op een aantrekkelijke locatie in het centrum van het dorp. Met diverse kamers, een praktische indeling en een ruime achtertuin biedt deze woning volop mogelijkheden voor comfortabel wonen, met winkels en voorzieningen binnen handbereik.
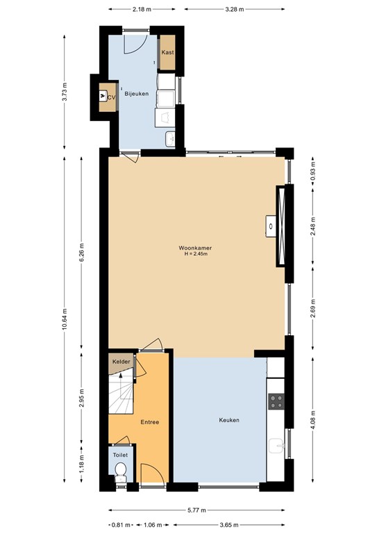
Entree/hal met toegang tot het toilet, de kelder en de woonkamer. De ruime woonkamer is centraal in de woning gelegen en biedt volop mogelijkheden voor een comfortabele zit- en eethoek. Aan de achterzijde bevindt zich de keuken, opgesteld langs de wand en voorzien van werk- en kastruimte. Vanuit de woonkamer is tevens de bijkeuken bereikbaar. Deze praktische ruimte beschikt over aansluitingen voor witgoed, de cv-opstelling, een kast en een extra spoelvoorziening.
Overloop met toegang tot drie slaapkamers en de badkamer. Aan de voorzijde ligt een slaapkamer. De tweede slaapkamer bevindt zich aan de achterzijde en is voorzien van een vaste kast. De derde slaapkamer, eveneens van goed formaat, beschikt ook over kastruimte. De badkamer is ingericht met een douche, toilet en wastafelmeubel.
Via de vaste trap is de tweede verdieping bereikbaar. Hier bevinden zich een overloop, een ruime zolder-/slaapkamer en bergruimte achter de knieschotten aan beide zijden. Deze verdieping is uitstekend te gebruiken als extra slaapkamer, werkruimte of hobbykamer.
| Referentienummer | 01614 |
| Prijs | Prijs op aanvraag |
| Inrichting | Niet gestoffeerd |
| Inrichting | Niet gemeubileerd |
| Status | Verkocht onder voorbehoud |
| Aanvaarding | In overleg |
| Laatste wijziging | Donderdag 19 maart 2026 |
| Type object | Woonhuis, eengezinswoning, twee onder een kap woning |
| Soort bouw | Bestaande bouw |
| Bouwperiode | 1958 |
| Dakbedekking | Bitumen Dakpannen |
| Type dak | Zadeldak |
| Keurmerken | Energie prestatie advies |
| Isolatievormen | Grotendeels dubbel glas Spouwmuren |
| Perceeloppervlakte | 330 m² |
| Woonoppervlakte | 128 m² |
| Inhoud | 474 m³ |
| Oppervlakte overige inpandige ruimten | 8 m² |
| Aantal bouwlagen | 3 (en 1 kelder) |
| Aantal kamers | 5 (waarvan 4 slaapkamers) |
| Aantal badkamers | 1 (en 1 apart toilet) |
| Ligging | Aan rustige weg In centrum In woonwijk Nabij school |
| Type | Voortuin |
| Oriëntering | West |
| Staat | Normaal |
| Tuin 2 - Type | Achtertuin |
| Tuin 2 - Hoofdtuin | Ja |
| Tuin 2 - Oriëntering | Oosten |
| Tuin 2 - Heeft een achterom | Ja |
| Tuin 2 - Staat | Prachtig aangelegd |
| Energielabel | D |
| CV ketel | Nefit EcomLine HR Excellent |
| Warmtebron | Gas |
| Bouwjaar | 2003 |
| Combiketel | Ja |
| Eigendom | Eigendom |
| Aantal parkeerplaatsen | 1 |
| Warm water | CV-ketel |
| Verwarmingssysteem | Centrale verwarming Gashaard Vloerverwarming (gedeeltelijk) |
| Ventilatie methode | Natuurlijke ventilatie |
| Keukenvoorzieningen | Inbouwapparatuur |
| Badkamervoorzieningen | Douche Toilet Wastafel Wastafelmeubel |
| Heeft kabel-tv | Ja |
| Tuin aanwezig | Ja |
| Telefoonaansluiting aanwezig | Ja |
| Beschikt over een internetverbinding | Ja |
| Heeft een schuifpui | Ja |
| Heeft zonwering | Ja |
| Kadastrale aanduiding | Ede E 12417 |
| Perceeloppervlakte | 330 m² |
| Omvang | Geheel perceel |
| Eigendomsituatie | Zie akte |