Beschrijving
WONEN EN WERKEN IN HET CENTRUM VAN VEENENDAAL!
Op de tweede verdieping van het complex aan de Bernard van Kreelpoort in Veenendaal komt per half maart 2026 dit royale en comfortabele vierkamerappartement beschikbaar, met een woonoppervlakte van ca. 122 m². Een unieke kans om ruim, modern en energiezuinig te wonen op een centrale locatie!
Daarnaast biedt dit appartement uitstekende mogelijkheden om vanuit huis te werken, met een extra kamer die perfect als werkkamer is in te richten.
Dit gestoffeerd op te leveren appartement biedt een bijzonder lichte woonbeleving dankzij de grote raampartijen. De woonkeuken vormt het kloppend hart van de woning en wordt volledig ingericht met moderne inbouwapparatuur. Er zijn maar liefst drie slaapkamers, waardoor het appartement ideaal is voor grotere huishoudens, thuiswerkers of liefhebbers van extra ruimte.
De badkamer krijgt een eigentijdse inrichting met een inloopdouche en een dubbele wastafel met meubel, en er is een separate toiletruimte aanwezig. Een interne berging en technische ruimte zorgen voor praktische opbergmogelijkheden en een nette scheiding van techniek en leefruimte. Het gehele appartement wordt afgewerkt met een stijlvolle PVC visgraatvloer. Verhuizen en wonen maar!
De ligging is perfect: op loopafstand van het gezellige centrum van Veenendaal, winkels, horeca, supermarkten en openbaar vervoer. Uitvalswegen richting de regio zijn eveneens uitstekend bereikbaar.
Hier woont u nieuw, groot, bijzonder comfortabel en midden in de dynamiek van de stad.
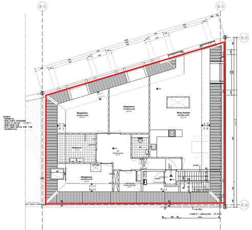
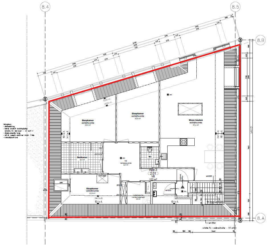
Indeling
Via de afgesloten centrale entree bereikt u via de trap de tweede verdieping van het complex.
De hal geeft toegang tot alle vertrekken. Aan de voorzijde bevindt zich de royale woonkamer met woonkeuken, die volop ruimte biedt voor zowel een grote zithoek als een ruime eettafel. De keuken wordt uitgerust met diverse inbouwapparatuur zoals inductiekookplaat met geïntrigeerde afzuiging, combimagnetron, koel/vriescombinatie en vaatwasser.
Het appartement beschikt over drie goed ingedeelde slaapkamers, waarvan één uitstekend kan worden ingericht als werk- of logeerkamer.
Verder treft u een moderne badkamer met inloopdouche en een dubbele wastafel met meubel, een separate toiletruimte en een praktische interne berging met opstelruimte voor de wasmachine.
Bijzonderheden
- Huurprijs: € 2.295,- per maand;
- Servicekosten: nader te bepalen;
- Borgsom: 1x de kale maandhuur;
- Beschikbaar per half maart 2026;
- Gestoffeerd opgeleverd;
- Gunning en financiële toetsing door verhuurder voorbehouden;
- Huurtermijn minimaal 12 maanden;
- Aanvaarding in overleg.
Interesse om dit appartement te huren?
1. Download via het kopje brochure (op onze eigen website) het inschrijfformulier;
2. Lever het inschrijfformulier compleet aan incl. alle bijbehorende bijlage;
3. Wij controleren het inschrijfformulier en toetsen uw gegevens (en indien deze voldoen nodigen wij u uit voor een bezichtiging);
4. Gunning is onvoorwaardelijk voorbehouden aan de verhuurder.