Beschrijving
Aan de Bernard van Kreelpoort 14 wordt momenteel hard gewerkt aan de realisatie van een modern en toekomstbestendig appartementencomplex. Per half maart 2026 wordt hier een verzorgd gestoffeerd driekamerappartement opgeleverd met een woonoppervlakte van circa 71 m².
Het appartement is praktisch ingedeeld met een lichte woonkamer, waarbij de open keuken een eigentijdse uitstraling krijgt en wordt voorzien van de benodigde inbouwapparatuur. De slaapkamer is van goed formaat en naast deze ruimte beschikt het appartement over een fijne werkkamer — zeer geschikt voor thuiswerk, hobby of extra opbergruimte. De badkamer wordt strak afgewerkt met moderne materialen en een comfortabele inloopdouche. Verder is er een separate toiletruimte aanwezig, evenals een technische/berging waarin onder andere de wasmachine kan worden geplaatst.
Met een stijlvolle PVC vloer en een afgewerkte wand- en plafondafwerking hoeft u alleen uw meubels nog mee te nemen; verhuizen was zelden zo eenvoudig!
Dankzij de centrale ligging vindt u winkels, supermarkten, restaurants en het OV allemaal op loopafstand. Hier geniet u van het gemak van stedelijke voorzieningen, terwijl u in uw appartement juist rust en comfort ervaart.
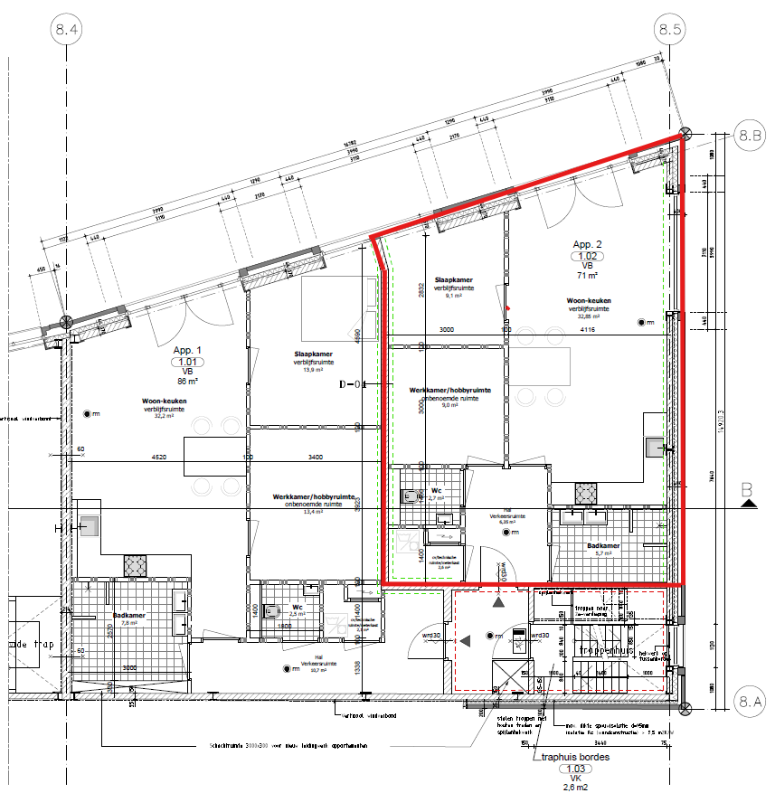
Indeling
Via de gezamenlijke entree met brievenbussen en intercomsysteem komt u binnen in de centrale hal met toegang tot de trap.
U betreedt het appartement in de hal die toegang geeft tot de meeste vertrekken. Aan de voorzijde ligt de woonkamer met open keuken, ingericht met moderne inbouwapparatuur zoals een inductiekookplaat met geïntrigeerde afzuiging, combimagnetron, koel/vriescombinatie en vaatwasser. De slaapkamer is prettig van formaat en daarnaast is er een separate werkkamer aanwezig. De badkamer is modern uitgevoerd met een inloopdouche en een dubbele wastafel met meubel. Verder beschikt het appartement over een separate toiletruimte en een interne berging.
Bijzonderheden
- Huurprijs: € 1.565,- per maand;
- Servicekosten: nader te bepalen;
- Borgsom: 1x de kale maandhuur;
- Beschikbaar per half maart 2026;
- Gestoffeerd opgeleverd;
- Gunning en financiële toetsing door verhuurder voorbehouden;
- Huurtermijn minimaal 12 maanden;
- Aanvaarding in overleg.
Interesse om dit appartement te huren?
1. Download via het kopje brochure (op onze eigen website) het inschrijfformulier;
2. Lever het inschrijfformulier compleet aan incl. alle bijbehorende bijlage;
3. Wij controleren het inschrijfformulier en toetsen uw gegevens (en indien deze voldoen nodigen wij u uit voor een bezichtiging);
4. Gunning is onvoorwaardelijk voorbehouden aan de verhuurder.