Beschrijving
Aan de Bernard van Kreelpoort 12 in Veenendaal verrijst momenteel een modern appartementengebouw. Per maart 2026 komt hier een nieuw, hoogwaardig afgewerkt driekamerappartement beschikbaar met een woonoppervlakte van circa 86 m². Het appartement wordt volledig gestoffeerd opgeleverd en is voorzien van een stijlvolle PVC vloer, een moderne keuken met inbouwapparatuur en een eigentijdse badkamer.
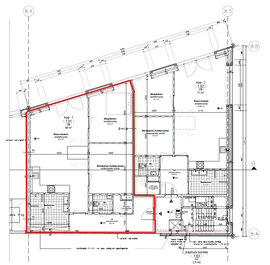
De indeling is comfortabel en praktisch. De lichte woonkamer biedt voldoende ruimte om een sfeervolle zit- en eethoek te creëren. Het appartement beschikt daarnaast over een ruime slaapkamer en een separate werkkamer: ideaal voor thuiswerken of als logeerkamer. De badkamer is modern uitgevoerd en er is een separate toiletruimte aanwezig.
De ligging is uitstekend! Gelegen midden in Veenendaal, nabij het centrum met een breed aanbod aan winkels, supermarkten, horeca en openbaar vervoer. Ook uitvalswegen richting Arnhem, Utrecht en Ede zijn snel bereikbaar.
Hier woont u comfortabel en op steenworp afstand van het bruisende centrum!
Indeling
De centrale entree van het gebouw is voorzien van brievenbussen en een intercominstallatie. Vervolgens bereikt u via de trap de verdieping van het appartement.
Binnenkomst in de hal die toegang geeft tot de meeste vertrekken. De woonkamer is ruim en licht, met een open verbinding naar de keuken. Deze wordt voorzien van moderne inbouwapparatuur zoals een inductiekookplaat met geïntrigeerde afzuiging, combimagnetron, koel/vriescombinatie en vaatwasser.
Er is één ruime slaapkamer aanwezig en daarnaast een praktische werkkamer. De badkamer wordt modern geïnstalleerd en voorzien van een inloopdouche en een dubbele wastafel met meubel. Verder beschikt het appartement over een separate toiletruimte en een interne berging/technische ruimte.
Bijzonderheden
- Huurprijs: € 1.675,- per maand;
- Servicekosten: nader te bepalen;
- Borgsom: 1x de kale maandhuur;
- Beschikbaar per half maart 2026;
- Gestoffeerd opgeleverd;
- Gunning en financiële toetsing door verhuurder voorbehouden;
- Huurtermijn minimaal 12 maanden;
- Aanvaarding in overleg.
Interesse om dit appartement te huren?
1. Download via het kopje brochure (op onze eigen website) het inschrijfformulier;
2. Lever het inschrijfformulier compleet aan incl. alle bijbehorende bijlage;
3. Wij controleren het inschrijfformulier en toetsen uw gegevens (en indien deze voldoen nodigen wij u uit voor een bezichtiging);
4. Gunning is onvoorwaardelijk voorbehouden aan de verhuurder.