Beschrijving
Namens onze opdrachtgever, bieden wij u een nieuwbouw unit TE KOOP aan op de Industrieweg 2D te Soest. Deze unit heeft ca. 71 m² BVO, verdeelt over twee bouwlagen.
De begane grond beschikt over een loopdeur en een elektrisch bedienbare overheaddeur. De verdieping leent zich perfect voor kantoorruimte. Een mooie combinatie, ideaal voor uw onderneming!
Op dit moment is de unit nog casco en wordt deze verkocht in huidige staat.
Qua parkeren is er één eigen parkeerplaats aanwezig.
De unit is gelegen aan de Industrieweg in Soest, op een aantrekkelijk en goed bereikbaar bedrijventerrein. De centrale ligging in Nederland maakt dit een uitstekende uitvalsbasis voor bedrijven met regionale of landelijke activiteiten. De snelwegen A1 en A27 zijn binnen enkele minuten bereikbaar, waardoor zowel klanten als leveranciers het pand eenvoudig kunnen bereiken. In de directe omgeving bevinden zich diverse ondernemingen, wat zorgt voor een dynamische en ondernemende werkomgeving.
Benieuwd? Informeer naar de mogelijkheden. Onze bedrijfsmakelaar vertelt u graag alle ins and outs van deze bedrijfsunit.
---
Maatvoering:
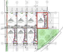
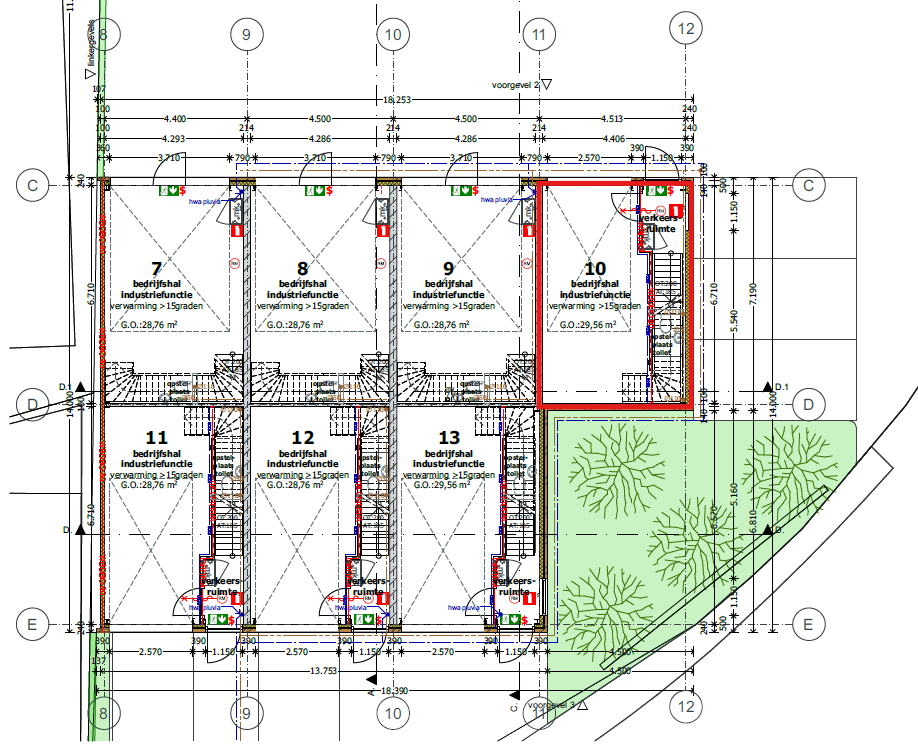
- Begane grond: circa 35 m² BVO.
- Eerste verdieping: circa 36 m² BVO.
Opleveringsniveau:
Uitgangspunt is dat het object in de huidige casco staat wordt opgeleverd.
Bestemming:
‘Bedrijf’ tot CAT 3.2.
Parkeren:
Eén eigen parkeerplaats aanwezig.
NUTS-kosten:
Eigen NUTS-aansluitingen. Het pand wordt gasloos opgeleverd.
Koopprijs
€ 194.500,- vrij op naam exclusief BTW en exclusief notariskosten.
Koopovereenkomst
Wanneer u de unit wenst aan te kopen dan zullen wij de koopovereenkomst opstellen en de notaris zal de leveringsakte opstellen.
Zekerheidstelling
Bankgarantie of waarborgsom ter grootte van 10% van de koopsom, af te geven bij of te storten op de rekening van het notariskantoor.
Aanvaarding:
In overleg.
Servicekosten:
P.M.
Maatvoering:
De in deze projectinformatie opgenomen maatvoering is slechts van indicatieve aard. Hieraan kunnen geen rechten worden ontleend. Er is geen NEN-meting uitgevoerd m.b.t. de maatvoering.
De vermelde informatie behelst geen aanbod doch globale informatie van algemene aard. De informatie is niet meer dan een uitnodiging om in onderhandeling te treden. VC bedrijfsmakelaars staat niet in voor de juistheid en volledigheid van de informatie. Aan de inhoud van deze informatie kunnen geen rechten worden ontleend.