Beschrijving
Aan de Einsteinstraat 23 in Veenendaal, op bedrijventerrein Compagnie-Oost, bieden wij een representatieve kantoorruimte aan. De locatie leent zich uitstekend voor uiteenlopende zakelijke activiteiten en combineert een praktische indeling met een uitstekende bereikbaarheid.
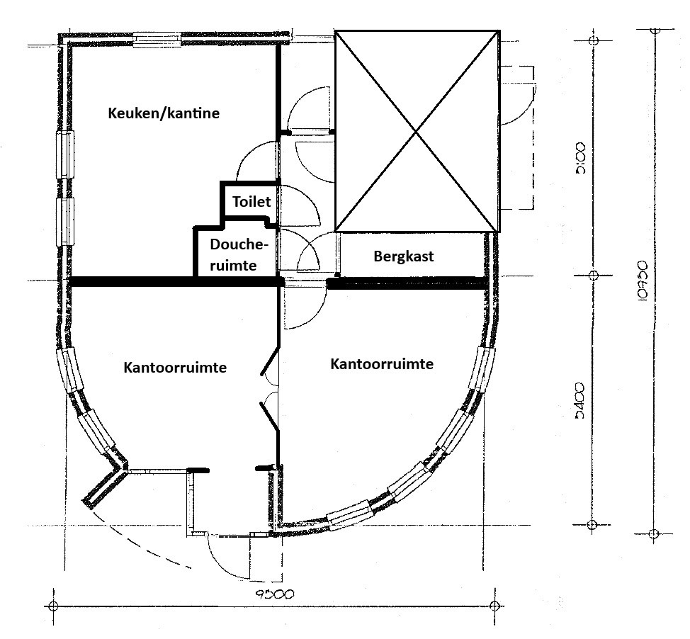
De kantoorruimte is gelegen op de begane grond en heeft een oppervlakte van circa 75 m². Dankzij de royale raampartijen valt er volop daglicht binnen en ontstaat een frisse, prettige werkomgeving. De ruimte beschikt over een functionele indeling met pantry en is keurig afgewerkt, zodat u direct een professionele indruk maakt op medewerkers en bezoekers.
Parkeren kan op het gezamenlijke terrein aan de voorzijde van het kantoor. De bereikbaarheid is uitstekend: de op- en afritten van de A12 liggen op slechts enkele autominuten en ook het openbaar vervoer is goed vertegenwoordigd. Meerdere bushaltes bevinden zich op loopafstand en NS-station Veenendaal-De Klomp ligt in de directe omgeving.
Benieuwd naar de mogelijkheden van deze kantoorruimte aan de Einsteinstraat 23? Neem gerust contact met ons op. Onze bedrijfsmakelaar vertelt u graag meer!
Maatvoering:
De oppervlakte bedraagt circa 75 m².
Opleveringsniveau:
In huidige staat.
Bestemming:
Het bestemmingsplan Het Noorderwerk kent als hoofdbestemming ‘Bedrijf’, met de functieaanduidingen ‘bedrijfswoning’ (verdieping) en ‘bedrijf tot en met categorie 2’. Voor meer informatie over deze bestemming kunt u terecht op omgevingswet.overheid.nl.
Parkeren:
Genoeg mogelijkheden op gezamenlijk terrein.
Huurprijs:
De huurprijs bedraagt € 1.150,- per maand, excl. BTW, excl. servicekosten.
Servicekosten:
De servicekosten bedragen € 115,- per maand, excl. BTW.
NUTS-kosten:
Eigen NUTS-aansluitingen, voor rekening-/risico van huurder.
Zekerheidsstellingen:
Afhankelijk van de financiële gegoedheid van de kandidaat een bankgarantie of waarborgsom ter grootte van 3 maanden kale huur excl. BTW.
Aanvaarding:
In overleg, op korte termijn mogelijk.
Huurtermijn:
In overleg, uitgangspunt 5 jaar met 5 optiejaren.
Opzegtermijn:
6 maanden.
Overige condities:
Huurovereenkomst op basis van het meest recente standaardmodel van de Raad voor Onroerende Zaken (ROZ).
Maatvoering:
De in deze projectinformatie opgenomen maatvoering is slechts van indicatieve aard. Hieraan kunnen geen rechten worden ontleend. Er is geen NEN-meting uitgevoerd m.b.t. de maatvoering.
De vermelde informatie behelst geen aanbod doch globale informatie van algemene aard. De informatie is niet meer dan een uitnodiging om in onderhandeling te treden. VC bedrijfsmakelaars staat niet in voor de juistheid en volledigheid van de informatie. Aan de inhoud van deze informatie kunnen geen rechten worden ontleend.