| Prijs | € 425.000,- k.k. |
| Type object | Woonhuis, eengezinswoning, twee onder een kap woning |
| Perceeloppervlakte | 155 m² |
| Woonoppervlakte | 71 m² |
| Aanvaarding | In overleg |
| Status | Nieuw in verkoop |
Welkom aan de P.H. van Rijnstraat 1! Deze sfeervolle twee-onder-een-kapwoning met moderne luxe en karakter is gelegen in het geliefde Veenendaal-Zuid. Deze woning combineert het charmante karakter van de jaren '30 met hedendaags comfort. Met een sfeervolle erker, verzorgde keuken en een moderne badkamer is de basis gelegd voor een fijn thuis. Aan de voorzijde beschikt u over parkeren op eigen terrein: comfortabel, veilig en altijd een plek voor de deur. De achtertuin is gunstig op het oosten gelegen en geniet daardoor van een fijne ochtend- en middagzon. Aan de woning vast bevindt zich bovendien een praktische bijkeuken, geschikt voor diverse doeleinden. Denk aan een kantoor aan huis, een chill-room voor de kinderen of juist een fijne ruimte voor het uitoefenen van uw hobby. Er is immers ook nog een separate berging voor uw fietsen en tuingereedschap. Dan even over de omgeving; op loopafstand komen we o.a. bij de bossen, een NS-treinstation en het Dr. Slotemaker de Bruïneplein met haar voorzieningen en weekmarkt. Ook landelijk bezien zijn de uitvalswegen zeer goed te noemen, denk hierbij aan de A12 en A15. Plan snel een bezichtiging en ontdek deze prachtige woning! Onze makelaar geeft u graag een rondleiding.
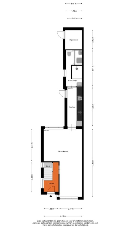
Via de entree/hal betreedt u deze karaktervolle woning. De hal is voorzien van een garderobe, trapopgang naar de eerste verdieping en toegang tot de woonkamer. De sfeervolle doorzonwoonkamer valt direct op door het fraaie balkenplafond, de strakke wandafwerking en de mooie, brede houtlook vloer die doorloopt over de gehele ruimte. Aan de achterzijde van de woning bevindt zich de verzorgde, afgesloten keuken. Deze is praktisch ingericht met een strakke, rechte opstelling en onder- en bovenkasten in een lichte kleurstelling. De keuken is compleet uitgevoerd met een vrijstaand Boretti-fornuis met oven en vier gaspitten, een afzuigkap, vaatwasser en een koelkast met vriesvak. Via de buitendeur heeft u direct toegang tot de tuin. Daarnaast biedt de keuken toegang tot de badkamer. De moderne badkamer is strak afgewerkt in neutrale tinten en voorzien van inbouwspots. U beschikt hier over een ruime inloopdouche met regendouche en zwarte armaturen en een houten wastafelmeubel. Aangrenzend bevindt zich het separate toilet met wandcloset. Hier zijn tevens de wasmachineaansluiting en de cv-ketel (NEFIT Proline HRC30/CW5 2011) netjes weggewerkt in een vaste kast. Direct aan de woning is een multifunctionele bijkeuken gesitueerd, geschikt voor uiteenlopende doeleinden zoals een kantoor aan huis, een hobbyruimte of een chill-room voor de kinderen.
Op de eerste verdieping bevindt zich een ruime overloop met toegang tot twee slaapkamers. Beide slaapkamers zijn voorzien van een dakkapel, wat zorgt voor extra ruimte en veel daglicht. De ouderslaapkamer is daarnaast uitgerust met inbouwspots.
De zolder is bereikbaar via een vaste trap en biedt ruimte aan een derde (slaap)kamer. Deze verdieping is voorzien van een dakkapel, wat zorgt voor extra licht en ruimte. De zolder is in het verleden in gebruik geweest als slaapkamer en kan uitstekend als zodanig functioneren, Hoewel de ruimte praktisch bruikbaar is als slaapkamer, bedraagt de oppervlakte boven de 200 cm-lijn minder dan 4 m² (3,79 m²). Derhalve wordt deze bouwlaag aangemerkt en berekend als overige inpandige ruimte en niet meegerekend in het totale woonoppervlak.
Dankzij de diepte van het perceel is de tuin een oase van rust en ruimte. Aan de achterzijde van de tuin bevindt zich een fijne veranda, ideaal voor gezellige avonden met familie en vrienden. Daarnaast is er een separate berging aanwezig voor fietsen en tuingereedschap.
• Bouwjaar: ca. 1935. • De woonoppervlakte bedraagt ca. 71 m² en de perceeloppervlakte: 155 m². • Definitief energielabel C. • De woning beschikt officieel over twee slaapkamers; de zolderruimte is officieel geen slaapkamer, maar kan in de praktijk uitstekend als derde (slaap)kamer worden gebruikt. • Verwarming en warm water via een cv-ketel (NEFIT Proline HRC30/CW5 2011). • Vloerverwarming aanwezig in de keuken. • Eigen oprit met parkeergelegenheid. • Diepe tuin met veranda en ruime multifunctionele schuur. • Gelet op het bouwjaar van de woning zal in de koopovereenkomst aanvullend een ouderdoms- , materialen- en asbestclausule worden opgenomen. • Deze presentatie is met zorg samengesteld op basis van de beschikbare gegevens en informatie. Desondanks kunnen aan de inhoud van deze verkooptekst geen rechten worden ontleend. Afmetingen, oppervlakten en andere details zijn indicatief en kunnen afwijken van de werkelijkheid. VC Makelaars B.V. is niet aansprakelijk voor eventuele fouten of onvolkomenheden in deze informatie. Ben je nieuwsgierig geworden naar deze twee-onder-een kapwoning? Neem vandaag nog contact met ons op om een bezichtiging in te plannen. Laat je verrassen door het comfort, de afwerking en de geweldige locatie van deze woning!
| Referentienummer | 01835 |
| Vraagprijs | € 425.000,- k.k. |
| Elektra | € 45,- |
| Gas | € 130,- |
| Water | € 19,- |
| Status | Nieuw in verkoop |
| Aanvaarding | In overleg |
| Type object | Woonhuis, eengezinswoning, twee onder een kap woning |
| Soort bouw | Bestaande bouw |
| Bouwperiode | 1935 |
| Dakbedekking | Bitumen Dakpannen |
| Type dak | Zadeldak |
| Isolatievormen | Dakisolatie Grotendeels dubbel glas Muurisolatie Spouwmuren Vloerisolatie |
| Perceeloppervlakte | 155 m² |
| Woonoppervlakte | 71 m² |
| Keukenoppervlakte | 6,89 m² |
| Inhoud | 271 m³ |
| Oppervlakte overige inpandige ruimten | 8 m² |
| Oppervlakte externe bergruimte | 4 m² |
| Aantal bouwlagen | 3 |
| Aantal kamers | 3 (waarvan 2 slaapkamers) |
| Aantal badkamers | 1 |
| Ligging | Aan rustige weg Dichtbij openbaar vervoer In woonwijk Nabij school |
| Type | Voortuin |
| Oriëntering | West |
| Staat | Normaal |
| Tuin 2 - Type | Zijtuin |
| Tuin 2 - Oriëntering | Noorden |
| Tuin 2 - Staat | Normaal |
| Tuin 3 - Type | Achtertuin |
| Tuin 3 - Hoofdtuin | Ja |
| Tuin 3 - Oriëntering | Oosten |
| Tuin 3 - Staat | Normaal |
| Energielabel | C |
| CV ketel | NEFIT PROline HRC30/CW5 |
| Warmtebron | Gas |
| Bouwjaar | 2011 |
| Combiketel | Ja |
| Eigendom | Eigendom |
| Aantal parkeerplaatsen | 1 |
| Warm water | CV-ketel |
| Verwarmingssysteem | Centrale verwarming Vloerverwarming (gedeeltelijk) |
| Ventilatie methode | Mechanische ventilatie Natuurlijke ventilatie |
| Badkamervoorzieningen | Douche Toilet Wasmachineaansluiting Wastafelmeubel |
| Heeft kabel-tv | Ja |
| Glasvezelaansluiting aanwezig | Ja |
| Tuin aanwezig | Ja |
| Beschikt over een internetverbinding | Ja |
| Heeft schuur/berging | Ja |
| Heeft een dakraam | Ja |
| Heeft ventilatie | Ja |
| Kadastrale aanduiding | Veenendaal B 4350 |
| Perceeloppervlakte | 155 m² |
| Omvang | Geheel perceel |
| Eigendomsituatie | Eigen grond |