Beschrijving

Wat is het heerlijk wonen aan de Middellaan 141 in Veenendaal! Een huis waar ruimte, comfort en duurzaamheid samenkomen. Met een woonoppervlak van maar liefst 163 m², verdeeld over meerdere verdiepingen, vind je hier alle ruimte voor het hele gezin. Denk aan minstens vijf volwaardige slaapkamers, een aparte kleed- of werkkamer, een speel-/kantoorruimte op de begane grond en twee moderne badkamers.

Deze woning biedt volop mogelijkheden voor (grote) gezinnen, thuiswerkers of mensen die simpelweg houden van veel leefruimte. 

Duurzaamheid? Check! Het energielabel is een “B” en er liggen 12 zonnepanelen op de woning. 

De ligging is ideaal: de woning bevindt zich in een rustige en groene woonwijk die zeer geschikt is voor gezinnen. Kinderen kunnen veilig buitenspelen, scholen en sportfaciliteiten liggen op korte afstand en ook winkels en supermarkten zijn dichtbij. Bovendien zijn de uitvalswegen richting de A12 en A30 snel te bereiken, waardoor steden als Utrecht, Amersfoort en Arnhem binnen handbereik liggen.

Ook de omgeving leent zich voor de actieve buitenmens. In de vroege ochtend een rondje joggen, overdag lekker mountainbiken of een fijne avondwandeling. De nabijgelegen bossen zijn uitnodigend!

Kunt u niet wachten om te komen bezichtigen? Wij snappen het! Plan daarom snel uw bezoek met een van onze makelaars.

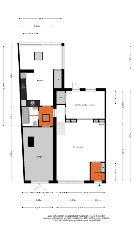
Indeling

Via de entree met meterkast kom je in de ruime woonkamer. De woonkamer is een heerlijke plek om te ontspannen. Dankzij de grote raampartijen valt er veel daglicht naar binnen en de houtkachel zorgt op koudere dagen voor warmte en gezelligheid.

Via stijlvolle en-suite deuren bereik je de extra kamer op de begane grond. Deze ruimte is ideaal als speelkamer voor de kinderen of als kantoor aan huis. De aanwezige inbouwkast maakt de kamer praktisch en netjes in te delen. Bovendien is er een directe doorgang naar de tuin, waardoor ook deze ruimte veel mogelijkheden biedt.

De woning is aan de achterzijde uitgebouwd, waardoor er een royale woonkeuken is ontstaan.

Hier staat samen genieten centraal. Er is volop ruimte voor een grote eettafel waar het hele gezin of vriendenkring kan aanschuiven.

De keuken zelf is modern uitgevoerd en van alle gemakken voorzien: een stoomoven, combimagnetron, inductiekookplaat, koelkast, vaatwasser en een strakke afzuigkap maken koken hier tot een feestje. Daarbij is er ook een airco (Daikin) en een elektrische verwarming aanwezig, zodat je de temperatuur altijd precies naar wens kunt regelen.

Een absolute eyecatcher zijn de twee grote schuifpuien die volledig open kunnen. Hierdoor loopt de woonkeuken naadloos over in de achtertuin en geniet je optimaal van het binnen-buitenleven. In de zomer zet je de deuren open en wordt de tuin een verlengstuk van je leefruimte; ideaal voor lange avonden met vrienden en familie.

Eerste verdieping

Op de eerste verdieping bevinden zich drie volwaardige slaapkamers, stuk voor stuk praktisch in te delen en voorzien van veel lichtinval. De master bedroom bevindt zich aan de achterzijde en biedt toegang tot een fijn balkon met uitzicht over de achtertuin; een heerlijke plek om in de ochtend met een kop koffie te beginnen of juist in de avond nog even te ontspannen.

De andere twee slaapkamers zijn eveneens ruim en geschikt als kinderkamer, logeerkamer of werkkamer.

De badkamer is modern afgewerkt en heerlijk licht, voorzien van een inloopdouche, zwevend toilet en een stijlvol wastafelmeubel. Alles is strak en eigentijds uitgevoerd.

Tweede verdieping

De vaste trap brengt je naar de tweede verdieping. Hier kom je op een ruime overloop waar de aansluitingen voor de wasmachine en droger zijn geplaatst. Daarnaast bevindt zich hier de cv-ketelopstelling en een praktische wastafel.

Op deze verdieping zijn er twee volwaardige slaapkamers, beide voorzien van fijne lichtinval en goed in te richten als slaap- of werkkamer. Daarnaast is er nog een extra kamer aanwezig, die zich uitstekend leent als inloopkast, strijkkamer of werkplek.

Tot slot is er een extra zolderverdieping. Deze ruimte is momenteel ingericht als slaapkamer, maar officieel aangemerkt als bergruimte. Dankzij de aanwezige airco is het hier het hele jaar door comfortabel.

Tuin

De achtertuin is fraai aangelegd met groen, terrassen en een fijne zitkuil. Hier geniet je volop van privacy en rust. Dankzij de grote schuifdeuren vanuit de woonkeuken betrek je de tuin eenvoudig bij het woongedeelte.

Bijzonderheden

•	Het bouwjaar van de woning betreft ca. 1982.
•	De woning heeft een definitief energielabel B.
•	De woning heeft 12 zonnepanelen.
•	De woonoppervlakte bedraagt 163 m².
•	Er zijn in basis een vijftal slaapkamers aanwezig en twee onbenoemde ruimtes welke bijvoorbeeld gebruikt kunnen worden als kantoor- of hobbyruimte, deze worden momenteel gebruikt als slaapkamers.
•	De woning is grotendeels voorzien van kunststofkozijnen.
•	De begane grond is voorzien van een fijne woonkeuken, ruime woonkamer, speel-/kantoorruimte, badkamer en voldoende opbergruimte. 
•	De woning is voorzien van een oprit met garage en vliering! 
•	Op korte afstand treft u een diversiteit aan scholen, winkels, sportaccommodaties en natuur.
•	Aanvaarding in overleg. 
•	Deze presentatie is met zorg samengesteld op basis van de beschikbare gegevens en informatie. Desondanks kunnen aan de inhoud van deze verkoop tekst geen rechten worden ontleend. Afmetingen, oppervlakten en andere details zijn indicatief en kunnen afwijken van de werkelijkheid. VC Makelaars B.V. is niet aansprakelijk voor eventuele fouten of onvolkomenheden in deze informatie.

Kenmerken