| Prijs | € 525.000,- k.k. |
| Type object | Woonhuis, eengezinswoning, eind woning |
| Perceeloppervlakte | 165 m² |
| Woonoppervlakte | 123 m² |
| Aanvaarding | In overleg |
Wonen aan het Gele Rijderspad 50 te Veenendaal. Stel u een woning voor waar duurzaamheid en comfort moeiteloos samenkomen. Met twaalf zonnepanelen en energielabel A woont u hier niet alleen energiezuinig, maar ook toekomstbestendig. Het geeft een gerust gevoel: een huis dat net zo klaar is voor de volgende stap als u. Als u verder kijkt, merkt al snel dat dit geen doorsnee woning is. De garage bijvoorbeeld: royaal van formaat en verrassend veelzijdig. Natuurlijk kunt u er uw auto veilig stallen, maar de elektrisch bedienbare sectionaaldeur en de aanwezigheid van een wateraansluiting met afvoer maken de ruimte ook bijzonder geschikt als hobby- of werkplek. Zelfs het plaatsen van witgoed behoort tot de mogelijkheden; praktisch, maar ook met een vleugje luxe. Vanuit de garage loopt u door naar de achtertuin, waar de verzorgde aanleg direct opvalt. Centraal staat de sfeervolle veranda, een plek die uitnodigt tot lange avonden buiten. Of het nu gaat om een zomerse barbecue met vrienden of een borrel met familie, hier ontstaan fijne herinneringen! Binnen zet dat gevoel zich voort. De woning biedt vier volwaardige slaapkamers, een luxe badkamer en een nette keuken. Vanuit het keukenraam valt het oog op een gemeentelijke groen- en waterpartij: een fraai uitzicht dat niet alleen sfeer toevoegt, maar ook extra privacy en rust geeft. Samen met een perceel van 165 m² en een woonoppervlak van ca. 123 m² vormt dit een huis waar ruimte en geborgenheid elkaar vinden. Daarbij liggen scholen, sportaccommodaties en winkels letterlijk om de hoek; een ideale balans tussen rust en bereikbaarheid. Tot slot is er al gedacht aan de volgende stap. De huidige bewoners hebben de laminaatvloer verwijderd en diverse wanden behangvrij gemaakt, waardoor de basis klaarstaat om snel uw eigen smaak en stijl door te voeren. Het scheelt u tijd en moeite, en zorgt ervoor dat u hier nog sneller uw draai vindt. Zo groeit dit huis in korte tijd uit tot een thuis waar u met plezier elke dag naar terugkeert. Benieuwd of dit bij u past? Wij denken van wel! En nodigen u van harte uit voor een bezichtiging met een van onze makelaars. Aarzel niet en plan uw bezoek.
Op de begane grond wordt u verwelkomd door een fraaie voordeur met glazen panelen, die toegang geeft tot een lichte, langgerekte hal. Hier treft u de meterkast, trapopgang en een modern toilet met fonteintje. Via een stijlvolle stalen deur bereikt u de uitgebouwde woonkamer. Grote ramen en openslaande deuren aan de westzijde zorgen voor een zee aan licht en een aangename verbinding met de tuin. Onder de trap bevindt zich een praktische bergkast, ideaal voor extra opbergruimte. De indeling maakt het mogelijk om het zitgedeelte ruimtelijk neer te zetten, terwijl het eetgedeelte prettig grenst aan de halfopen keuken. De keuken is ingericht met een lichte hoekopstelling en voorzien van diverse inbouwapparatuur, waaronder een 5-pits gaskookplaat, afzuigkap, koel-/vriescombinatie, combimagnetron (2016) en een vaatwasser (2018). Het uitzicht op de tuin en het vrije straatbeeld maakt koken een plezierige bezigheid. De ruimte biedt voldoende plek voor bijvoorbeeld een servieskast, zonder dat dit ten koste gaat van het gevoel van licht en openheid.
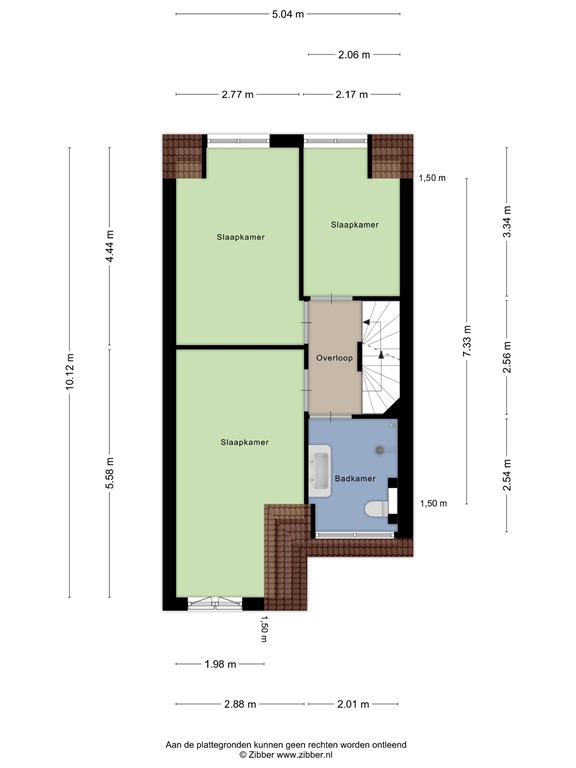
Op de eerste verdieping geeft de overloop toegang tot drie slaapkamers en de recent vernieuwde badkamer (2022). Deze badkamer straalt luxe en moderniteit uit, met een royale inloopdouche, een dubbel wastafelmeubel, zwart wandcloset en een grote spiegel. Stijlvolle details zoals zwarte kranen, inbouwverlichting en een slim verwarmingspaneel maken het geheel af. De hoofdslaapkamer aan de voorzijde is royaal van formaat en beschikt over een Frans balkon met openslaande deuren. Aan de achterzijde zorgen de brede dakkapel en de afwerking voor opvallend veel licht en ruimte in de overige slaapkamers.
De tweede verdieping is bereikbaar via een vaste trap. Hier vindt u een lichte overloop, dankzij het zijraam, en een ruime vierde slaapkamer met groot dakraam. Via een vlizotrap is er toegang tot een extra bergvliering, waardoor bergruimte gegarandeerd is. Daarnaast bevindt zich boven de hoofdslaapkamer nog een tweede bergzolder, bereikbaar via een aparte vlizotrap.
- De woning is gebouwd in 2004. - Energielabel A. - 12 PV-panelen aanwezig. - Verwarming en warm water geschieden via een CV-combiketel (Remeha, 2004). - Het is de riante garage (ca. 25 m²) die deze eindwoning extra aantrekkelijk maakt. - Een sfeervolle veranda maakt het buitenleven comfortabel. - De wijk Dragonder-Oost is geliefd. En niet zonder reden. Enkele plussen: dichtbij het centrum van Veenendaal, boordevol voorzieningen zoals sportfaciliteiten, scholen en op loopafstand van het stadspark en de surfvijver. Maar ook de regionaal en nationaal bezien zijn de uitvalswegen zeer goed te noemen en is de centrale ligging zeer gunstig. - Interesse? Wil je deze woning met eigen ogen zien? Plan dan snel een bezichtiging. Neem contact op met ons makelaarskantoor en ontdek wat deze heerlijke gezinswoning te bieden heeft! - Deze presentatie is met zorg samengesteld op basis van de beschikbare gegevens en informatie. Desondanks kunnen aan de inhoud van deze verkooptekst geen rechten worden ontleend. Afmetingen, oppervlakten en andere details zijn indicatief en kunnen afwijken van de werkelijkheid. VC Makelaars B.V. is niet aansprakelijk voor eventuele fouten of onvolkomenheden in deze informatie.
| Referentienummer | 01782 |
| Vraagprijs | € 525.000,- k.k. |
| Inrichting | Niet gestoffeerd |
| Inrichting | Niet gemeubileerd |
| Aanvaarding | In overleg |
| Laatste wijziging | Maandag 29 december 2025 |
| Type object | Woonhuis, eengezinswoning, eind woning |
| Soort bouw | Bestaande bouw |
| Bouwperiode | 2004 |
| Dakbedekking | Dakpannen |
| Type dak | Zadeldak |
| Isolatievormen | Dakisolatie Dubbel glas HR-glas Muurisolatie Spouwmuren Vloerisolatie |
| Perceeloppervlakte | 165 m² |
| Woonoppervlakte | 123 m² |
| Inhoud | 435 m³ |
| Oppervlakte externe bergruimte | 26,4 m² |
| Aantal bouwlagen | 3 |
| Aantal kamers | 5 (waarvan 4 slaapkamers) |
| Aantal badkamers | 1 (en 1 apart toilet) |
| Ligging | Aan rustige weg Aan water Beschutte ligging In woonwijk Nabij school Nabij snelweg |
| Type | Voortuin |
| Oriëntering | Oosten |
| Staat | Prachtig aangelegd |
| Tuin 2 - Type | Achtertuin |
| Tuin 2 - Hoofdtuin | Ja |
| Tuin 2 - Oriëntering | West |
| Tuin 2 - Heeft een achterom | Ja |
| Tuin 2 - Staat | Prachtig aangelegd |
| Energielabel | A |
| CV ketel | Remeha Quinta |
| Warmtebron | Gas |
| Bouwjaar | 2004 |
| Combiketel | Ja |
| Eigendom | Eigendom |
| Aantal parkeerplaatsen | 1 |
| Aantal overdekte parkeerplaatsen | 1 |
| Warm water | CV-ketel |
| Verwarmingssysteem | Centrale verwarming |
| Keukenvoorzieningen | Inbouwapparatuur |
| Badkamervoorzieningen | Dubbele wastafel Inloopdouche Toilet Wastafelmeubel |
| Parkeergelegenheid | Vrijstaande houten garage |
| Heeft een frans balkon | Ja |
| Tuin aanwezig | Ja |
| Heeft een garage | Ja |
| Heeft een dakraam | Ja |
| Heeft zonwering | Ja |
| Heeft zonnepanelen | Ja |
| Kadastrale aanduiding | Veenendaal K 4887 |
| Perceeloppervlakte | 165 m² |
| Omvang | Geheel perceel |
| Eigendomsituatie | Zie akte |