Omschrijving

NIEUWE MOGELIJKHEDEN | NU MET GROTER PERCEEL EN SCHUUR!

Landelijk wonen met nieuwbouwcomfort. In het buitengebied van Ede (op korte afstand van Veenendaal) verrijst deze twee-onder-een-kapwoning op een riant perceel van 1.028 m² en een bestaande garage/schuur met volop mogelijkheden, denk hierbij aan MANTELZORG* en/of gewoon een heerlijk ruime schuur met ruimte voor 4 auto’s, hobby’s en/of als kantoorruimte bij huis. Hier worden dromen werkelijkheid!

Vrijheid, ruimte en uitzicht zijn hier voelbaar: vanuit de woonkamer kijk je uit over de weilanden en natuurgebied De Groene Grens ligt praktisch om de hoek.

De woning wordt gebouwd onder BouwGarant en is ontworpen met oog op de toekomst: voorlopig energielabel A+++. Warmtepomp, triple glas en de aanwezigheid van enkele zonnepanelen zorgen voor comfortabel wonen en lage energielasten.

En dan het buitenleven… Dit is zo’n plek waar je ’s avonds nog even een rondje door je eigen tuin loopt. BBQ met vrienden, een moestuin, speelruimte voor de kids, een vuurkorfplek of een klein weilandje met hobbydieren: hier kan het. En het mooiste? Je kunt de woning en het perceel naar eigen wens afbouwen en inrichten.

De uitgestrekte bossen van de Utrechtse Heuvelrug, maar ook de heide en bossen van Ede liggen op fietsafstand. Stap op de fiets voor een ontspannen tocht door het groen!

Of u nu houdt van levendigheid of juist de rust opzoekt, deze plek biedt het allebei. En dat in een duurzame, energiezuinige woning die helemaal klaar is voor de toekomst.

Bent u klaar om uw woondromen waar te maken? Neem vandaag nog contact met ons op en ontdek wat deze bijzondere nieuwbouwwoning u te bieden heeft!

*Opties tot MANTELZORG verkennen we graag indien daar specifieke belangstelling voor is.

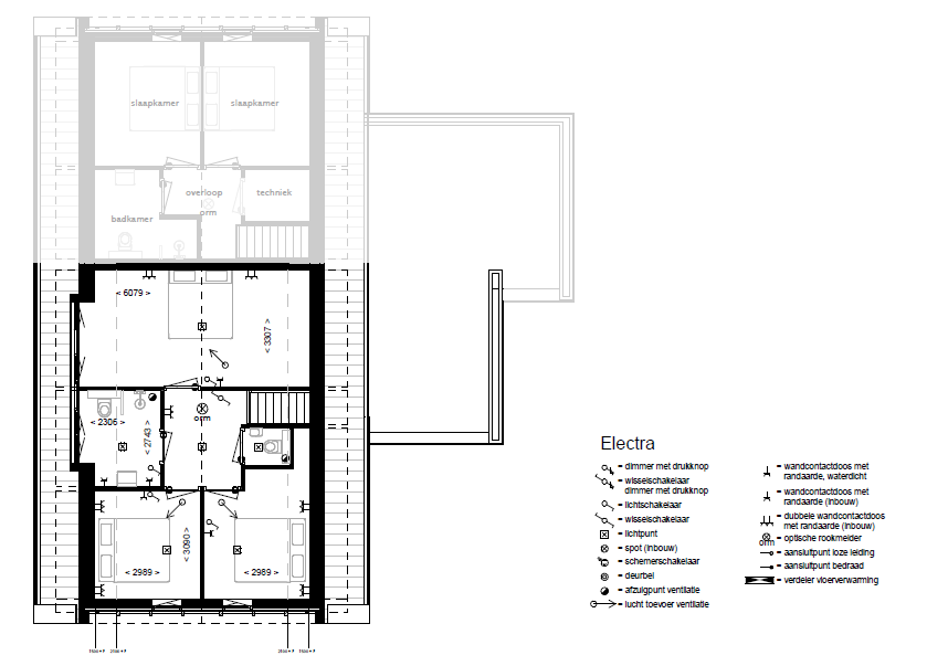
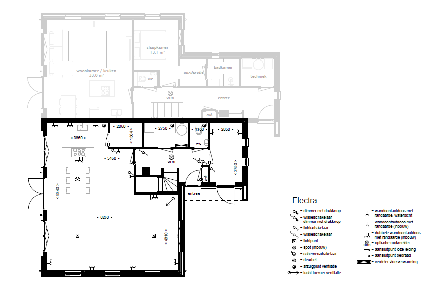
Indeling

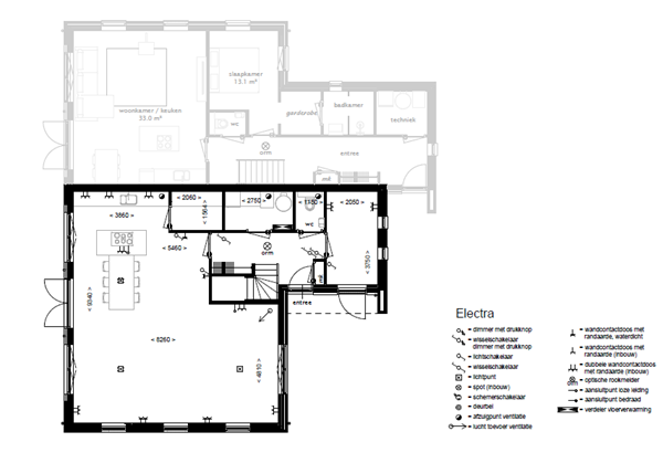
We stappen binnen via de entree/hal. Aan uw rechterhand vindt u direct de meterkast. Praktisch is ook de fietsenberging: met een eigen entree naast de voordeur en intern verbonden met de ontvangsthal. Ideaal voor fietsen, kinderwagen of gewoon: alles wat u graag uit het zicht houdt, maar wél binnen handbereik wilt hebben.

Verder treft u in de hal de toiletruimte, een nette garderobenis en de technische ruimte. Alles klopt: logisch ingedeeld, overzichtelijk en klaar om op uw manier af te werken.

En dan lopen we door naar de royale living. Hier komt het buitengebied echt binnen. De ruimte biedt alle plek voor een comfortabele zithoek en een fijne keukenopstelling: koken, lunchen, naborrelen; het kan hier moeiteloos naast elkaar bestaan. Naar hartenlust richt u dit hart van het huis precies zo in als u het voor u ziet.

Vanuit de keuken/woonkamer merkt u het direct: u woont hier heerlijk landelijk. Het uitzicht over de weilanden is rustgevend en elke dag anders. De openslaande tuindeuren maken de verbinding tussen binnen en buiten bijna vanzelfsprekend. Even naar buiten, een kop koffie op het terras, de avondzon meepakken… dat buitenleven ligt hier letterlijk aan uw voeten.

En binnen? Daar is het minstens zo comfortabel, met vloerverwarming die het huis een rustige, aangename warmte geeft.

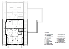
Eerste verdieping

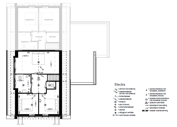
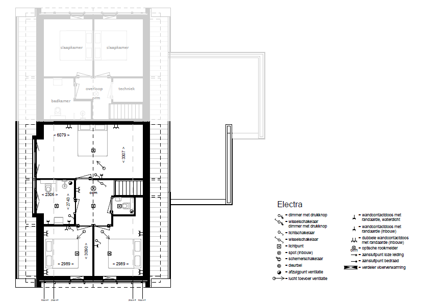
Via de trap bereiken we de overloop, het centrale punt van deze verdieping. Vanaf hier zijn alle ruimtes prettig en logisch toegankelijk: drie slaapvertrekken, de badkamer en een separate toiletruimte.

Die aparte toiletruimte is een fijne luxe en maakt deze verdieping extra comfortabel, zeker voor een gezin of wanneer u gasten ontvangt.

De drie slaapkamers zijn stuk voor stuk volwaardig en multifunctioneel in te delen: als hoofdslaapkamer, kinderkamer, werkkamer of logeerkamer. De master bedroom springt eruit en profiteert van de dakkapel, wat zorgt voor extra ruimte, licht en een prettig gevoel van vrijheid.

Ook de badkamer is voorzien van een dakkapel, wat niet alleen extra daglicht oplevert, maar ook meer indelingsmogelijkheden. Hier zijn een douche, wastafelmeubel en een toilet realiseerbaar – helemaal naar eigen smaak en stijl af te werken.

Een verdieping die rust en comfort uitstraalt, met slimme keuzes in indeling en volop mogelijkheden om er echt uw eigen plek van te maken. Uiteraard ook voorzien van vloerverwarming.

Bijzonderheden

  • Bouw start in overleg, eerste/tweede kwartaal 2026 mogelijk
  • Aannemersbedrijf Randewijk, wordt gebouwd met BouwGarant
  • Meer ruimte nodig? Er is een bestaande schuur van ca. 88 m² ; ideaal voor opslag, hobby, werkruimte bij huis en/of tot verkenning van MANTELZORG mogelijkheden.
  • Perceelsgrootte, 1.028 m²
  • Warmtepomp NIBE F2050-6
  • Vloerverwarming (laagtemperatuur) + mogelijkheid tot koelen
  • Balansventilatie met WTW (CO₂-gestuurd, Zehnder Q450)
  • Triple beglazing
  • 16 PV-panelen (op de bestaande schuur, met doorlus naar uw nieuw te bouwen woning
  • Een plek om echt te landen. Koffie in de ochtendzon, lange avonden buiten, kinderen die alle ruimte hebben, een eigen groentetuin of een hoekje met hobbydieren. Dit is “thuis” met een hoofdletter T
  • Deze presentatie is met zorg samengesteld. Afmetingen, oppervlakten en gegevens zijn indicatief; aan de inhoud kunnen geen rechten worden ontleend.
Omschrijving Kenmerken Media Plattegronden Map

Kenmerken

Algemeen
Prijs€ 970.000,- v.o.n.
StatusBeschikbaar
Aangeboden sinds13 juni 2025
AanvaardingIn overleg
Bouw
Soort woonhuisEengezinswoning
Bouwjaar2026
BouwvormWoonhuis
Soort dakZadeldak
Oppervlakten & inhoud
Wonen148 m2
Gebouwgebonden buitenruimte87 m2
Perceel1.028 m2
Inhoud587 m3
Indeling
Aantal kamers4
Aantal slaapkamers3
Aantal verdiepingen2
Energie
EnergielabelA+++
VerwarmingWarmtepomp
Buitenruimte
Aantal tuinen1
HoofdtuinJa
TuintypeTuin rondom
LiggingNoordoost
Achterom ingangNee
Garage
Aantal garages1
Type garage:Vrijstaand steen
Oppervlakte:87 m2
Capaciteit:4
Voorzieningen:Elektra
Parkeergelegenheid
Aantal parkeerplaatsen4

Media

Plattegronden

Map

vcmakelaars 10

"Ik kan niet anders dan positief zijn over VC Makelaars. De communicatie was erg prettig, afspraken werden altijd nagekomen en ze hebben duidelijk verstand van zaken. Omdat dit onze eerste keer was dat we een huis hebben verkocht was het een spannend proces met veel vragen. We werden van begin tot eind goed begeleid en er werd snel antwoord gegeven op onze vragen. Met uiteindelijk een mooi resultaat tot gevolg!"

Hisveltplein 92, Arnhem
vcmakelaars 9.5

“Prettige begeleiding, lekkere korte lijnen en actief met elkaar bespreken wat de mogelijkheden zijn. Zeker een aanbeveling waard!”

Eenvoudlaan 54, Veenendaal
vcmakelaars 9.8

“Enorm goed begeleid in het verkoop proces! VC makelaars zijn goed bereikbaar voor vragen en altijd bereid te helpe.”

Goudvink 109, Veenendaal
vcmakelaars 10

“Wij hebben een goede ervaring. Communicatie was helder en duidelijk. Na bezichtiging ontvingen we meteen een app hoe het verlopen was. Bij vragen onmiddellijk antwoord. Kortom zeer tevreden."

Linnaeuslaan 89, Veenendaal
vcmakelaars 10

"Zeer tevreden over de verkoop. Binnen drie weken verkocht. Goede presentatie, goed bereikbaar, direct handelen."

Veenraden 163, Veenendaal
vcmakelaars 10

"Gert en zijn team hebben ons uitstekend begeleid tijdens het hele verkooptraject. De communicatie was vanaf het eerste moment snel, duidelijk en heel prettig. Ze denken actief mee, komen met sterke ideeën en nemen echt de tijd om samen naar het beste resultaat toe te werken.Dankzij hun aanpak was onze woning snel en tegen goede voorwaarden verkocht. We raden VC Makelaars dan ook van harte aan. Het is een betrokken team dat prettig in de omgang is, snel schakelt en precies weet wat er speelt in de lokale markt. Absoluut een aanrader!"

Rossiniweg 53, Veenendaal
vcmakelaars 9.5

"Zowel Gert als Wessel hebben ons enorm geholpen in het maken van beslissingen waar we voor kwamen te staan. Er is alles uit de kast gehaald om een voor ons tevreden afhandeling plaats te laten vinden. Ze hebben lokale marktkennis en geven goede adviezen. We raden hen ten zeerste aan!"

Buitenhuishof 19, Veenendaal
vcmakelaars 10

"Van bezichtiging tot en met het tekenen van de notaris erg betrokken geweest. Heel fijn team van VC om mee samen te werken. Voor alle vragen binnen zeer korte tijd antwoord en een goede begeleiding!"

Prins Willem-Alexanderpark 579, Veenendaal
vcmakelaars