Beschrijving

MAXIMAAL 2 JAAR BESCHIKBAAR

Het appartement is gelegen in hartje Veenendaal met alle denkbare voorzieningen op loopafstand. Winkels, horeca en cultuur zijn er binnen handbereik! Het bruisende winkelcentrum biedt diversiteit en heeft daarnaast ook gezellige terrasjes. Twee keer per week is er een markt met onder andere groenteboeren, bloemisten en bakkers. 

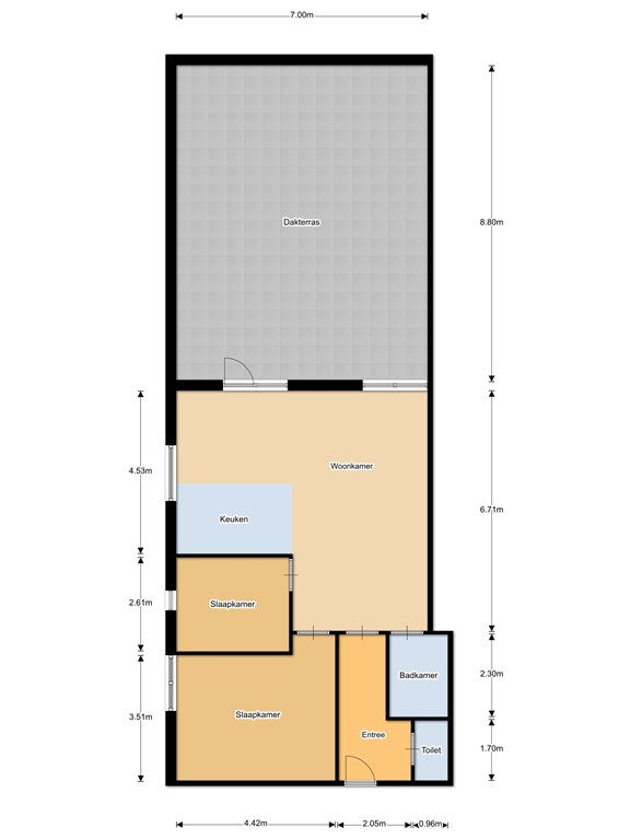
De woonoppervlakte van het appartement betreft c.a. 78 m² en het eigen dakterras heeft een oppervlakte van 61 m². 

De woning is beschikbaar voor tijdelijk gebruik (maximaal 2 jaar) en daarom ideaal voor een overbruggingsperiode!

Indeling

Via de ruime entree met separate toiletruimte bereik je direct de woonkamer. 

Deze woonkamer met veel lichtinval is ruim opgezet en bevat meerdere logische opstelmogelijkheden voor een zithoek en een grote eettafel. De open keuken is van alle voorzieningen voorzien met inbouwapparatuur, voldoende werkblad en veel bergruimte. Vanuit de woonkamer kunt u doorlopen naar het royale dakterras.

De twee slaapkamers en de badkamer grenzen aan de woonkamer. De badkamer beschikt over een inloopdouche en een wastafelmeubel.

Bijzonderheden

- Huurprijs: € 1.495,- per maand (exclusief voorschot servicekosten € 90,- per maand); 
- Beschikbaar per 01-11-2025;
- Er is geen lift aanwezig; 
- Verwarming middels infrarood warmtepanelen. Het betreft een ‘gasloos’ appartement; 
- Kandidaat-huurders worden onder andere getoetst op inkomen en overige relevante informatie; 
- Gunning is onvoorwaardelijk voorbehouden aan de eigenaar.

Interesse om dit appartement te huren?
1. Download het inschrijfformulier (VC Makelaars -> Downloads -> Inschrijfformulieren huurwoningen) op onze eigen website;
2. Vul deze formulieren in en lever deze met de benodigde formulieren aan per e-mail (info emailadres); 
3. Indien u voldoet aan de voorwaarden en de stukken zien er goed uit, dan kunnen wij een bezichtiging plannen.

Kenmerken