Omschrijving
Wonen op een rustige, kindvriendelijke plek, met volop ruimte en praktische voorzieningen binnen handbereik? Dan is deze geschakelde woning in Veenendaal-West zeker een bezichtiging waard. De woning beschikt over parkeergelegenheid op eigen terrein, een eigen garage van 19 m² met praktische zolder en diverse gebruiksmogelijkheden, en ligt aan de voorzijde heerlijk vrij aan een groenstrook met speelgelegenheid.
Met 120 m² woonoppervlakte en vier slaapkamers* is deze woning perfect voor gezinnen, thuiswerken of het creëren van extra hobby- en logeerruimte.
De garage van 19 m² vormt een waardevolle aanvulling op het geheel. Dankzij de praktische zolder en de multifunctionele indeling is deze ruimte voor diverse doeleinden te gebruiken. Uiteraard is de garage ideaal voor het stallen van een auto, fietsen of motor, maar ook als hobbyruimte, werkplek aan huis of extra bergruimte biedt deze volop mogelijkheden.
Ook de omgeving leent zich voor de actieve buitenmens. In de vroege ochtend een rondje joggen, overdag lekker mountainbiken of een fijne avondwandeling. Binnen een paar minuten staat u in de bossen van de Utrechtse Heuvelrug! Ook qua voorzieningen zit u goed: met op fietsafstand twee wijkwinkelcentra (de Ellekoot en Dr. Slotemaker de Bruїneplein), alsmede een NS-treinstation Veenendaal-West. Vele woonwensen gaan hier in vervulling.
Benieuwd naar deze unieke woning? Plan snel een bezichtiging met één van onze makelaars en ontdek jouw toekomstige thuis!
Indeling
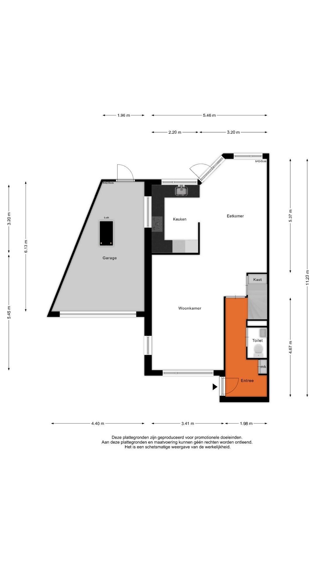
Via de voortuin betreden we de hal van de woning. We komen binnen in de lichte woonkamer met uitzicht op de groenstrook aan de voorzijde. Een fijne plek om te zitten, en met het aanwezige screen blijft het ook op warme dagen comfortabel.
Aan de achterzijde ligt de keuken. Netjes en praktisch, uitgerust met een inductiekookplaat, combimagnetron, afzuigkap, Quookerkraan, koelkast met vriezer en een vaatwasser. Er is voldoende ruimte voor een gezellige eethoek waar u makkelijk met het gezin of vrienden kunt tafelen. Vanuit de keuken loopt u zo de achtertuin in.
De begane grond is voorzien van vloerverwarming (bijverwarming).
Eerste verdieping
Op de eerste verdieping bevinden zich drie slaapkamers* en de badkamer. De grootste slaapkamer ligt aan de achterzijde en biedt volop ruimte voor een groot bed en kastruimte. Vanuit deze ouderslaapkamer is bovendien een balkon bereikbaar, gelegen op het zuidwesten. Dit is een fijne plek om van de middag- en avondzon te genieten. De twee overige slaapkamers zijn ideaal voor kinderen, een werkplek of logeerkamer.
De badkamer is ruim van opzet en voorzien van een ligbad, separate douche met steun, een wastafelmeubel en een toilet.
* De ouderslaapkamer is officieel één slaapkamer, maar is momenteel opgedeeld met een kastenwand. Door het plaatsen van een tussenmuur kunnen eenvoudig weer twee aparte slaapkamers worden gecreëerd.
Tweede verdieping
De tweede verdieping beschikt over een vierde, ruime slaapkamer. Deze slaapkamer heeft aan beide zijden knieschotten onder het schuine dak, wat zorgt voor extra opbergruimte. Daarnaast is er op de overloop de cv-opstelling (Nefit Trendline HRC 30 2016) geplaatst en zijn aansluitingen voor de wasmachine en droger aanwezig. Deze verdieping biedt door de praktische indeling veel mogelijkheden voor bijvoorbeeld een thuiswerkplek.
Tuin
Aan de voorzijde van de woning loop je direct het groen in, met speelgelegenheid in de buurt; ideaal voor gezinnen met (jonge) kinderen.
De voortuin bevindt zich op het noordenoosten met een oprit en parkeergelegenheid op eigen terrein. Daarnaast is er de mogelijkheid om de auto in de garage te plaatsen. De multifunctionele garage is niet alleen ideaal voor opslag, maar ook perfect voor de handige klusser: een fijne plek om te sleutelen, klussen of een hobbyruimte te creëren.
De achtertuin is gelegen op het zuidwesten en vormt een fijne plek om van de middag- en avondzon te genieten. De tuin is verzorgd aangelegd met veel groen en een sfeervolle vijver. Vanuit de tuin zijn zowel de garage als de achterom bereikbaar.
Bijzonderheden
- LET OP! De ouderslaapkamer is officieel één slaapkamer, maar is momenteel opgedeeld met een kastenwand. Door het plaatsen van een tussenmuur kunnen eenvoudig weer twee aparte slaapkamers worden gecreëerd. In de presentatie van de woning zijn er wel 4 slaapkamers opgenomen.
- Woonoppervlakte: 120 m².
- Perceelsoppervlakte: 203 m².
- Het bouwjaar van deze woning is ca. 1978.
- Energielabel C.
- Verwarming en warmwater door middel van cv-ketel: Nefit Trendline HRC 30 2016.
- Vloerverwarming (bijverwarming) aanwezig op de begane grond.
- Deze woning beschikt over een drietal volwaardige slaapkamers, maar het realiseren van een vierde en/of vijfde kamer is prima denkbaar.
- De woning ligt in een autoluw gedeelte met een gemeentelijke groenstrook en speelgelegenheid die het straatbeeld siert.
- In de koopovereenkomst wordt een ouderdomsclausule opgenomen, aangezien de woning meer dan 48 jaar oud is.
- Met goede uitvalswegen, een wijkwinkelcentrum en een NS-treinstation op korte afstand is deze plek toch ideaal? Bent u verzot op mountainbiken, wandelen of hardlopen? De bossen in deze omgeving zijn uitgestrekt. En erg fijn om bij in de buurt te wonen. Locatie: CHECK! Nog een extra reden om te komen kijken.
- Benieuwd of u deze woning kunt financieren? Aarzel dan niet en laat u vrijblijvend doorverwijzen naar onze hypotheekadviseur.
- Oplevering in overleg.
- Deze presentatie is met zorg samengesteld op basis van de beschikbare gegevens en informatie. Desondanks kunnen aan de inhoud van deze verkooptekst geen rechten worden ontleend. Afmetingen, oppervlakten en andere details zijn indicatief en kunnen afwijken van de werkelijkheid. VC Makelaars B.V. is niet aansprakelijk voor eventuele fouten of onvolkomenheden in deze informatie.Interesse? Wil je deze woning met eigen ogen zien? Plan dan snel een bezichtiging. Neem contact op met ons makelaarskantoor en ontdek wat deze heerlijke gezinswoning te bieden heeft!
Kenmerken
| Algemeen | |
|---|---|
| Prijs | € 512.500,- k.k. |
| Status | Beschikbaar |
| Aangeboden sinds | 16 maart 2026 |
| Aanvaarding | In overleg |
| Bouw | |
| Soort woonhuis | Eengezinswoning |
| Bouwjaar | 1978 |
| Bouwvorm | Woonhuis |
| Soort dak | Zadeldak |
| Oppervlakten & inhoud | |
| Wonen | 120 m2 |
| Perceel | 203 m2 |
| Inhoud | 509 m3 |
| Indeling | |
| Aantal kamers | 4 |
| Aantal slaapkamers | 3 |
| Aantal verdiepingen | 3 |
| Energie | |
| Energielabel | C |
| Verwarming | CV ketel, Gedeeltelijke vloerverwarming |
| Warm water | CV ketel |
| Buitenruimte | |
| Aantal tuinen | 2 |
| Hoofdtuin | Nee |
| Tuintype | Voortuin |
| Ligging | Noordoost |
| Achterom ingang | Nee |
| Hoofdtuin | Ja |
| Tuintype | Achtertuin |
| Ligging | Zuidwest |
| Achterom ingang | Ja |
| Garage | |
| Aantal garages | 1 |
| Type garage: | Aangebouwd steen |
| Oppervlakte: | 19 m2 |
| Capaciteit: | 1 |
| Voorzieningen: | Elektra, Vliering |
| Parkeergelegenheid | |
| Aantal parkeerplaatsen | 2 |

