Omschrijving
Aan de Broekerlaan 33 staat deze verrassend ruime, instapklare woning met garage en diepe achtertuin, die recent volledig is gerenoveerd op de begane grond en eerste verdieping. Hierbij is gekozen voor een hoogwaardige en eigentijdse afwerking, waardoor de woning direct een moderne, verzorgde en comfortabele uitstraling heeft.
• Instapklaar – CHECK!
• Ruime woonkeuken – CHECK!
• Heerlijke achtertuin – CHECK!
• Garage – CHECK!
• Strak afwerkingsniveau – CHECK!
We kunnen hier complete wensenlijsten afvinken van woningzoekende.
De garage is via de tuin en het naastgelegen pad te bereiken. Deze is geschikt voor het parkeren van een auto en daarnaast volop ruimte biedt voor fietsen, opslag of hobbydoeleinden.
De ligging van deze woning is bijzonder aantrekkelijk. Je woont hier op korte afstand van het centrum van Scherpenzeel, met alle dagelijkse voorzieningen binnen handbereik. Een extra plus is de nabijheid van het park van Huis Scherpenzeel, een fraaie en groene omgeving met een karakteristieke, historische uitstraling waar je heerlijk kunt wandelen. Daarbij zijn ook het openbaar vervoer en de uitvalswegen richting de A12 en A30 goed bereikbaar.
Indeling
Via de royale voortuin bereiken we de entree van de woning. De hal biedt toegang tot de meterkast, het toilet (voorzien van een zwevend toilet) en de doorgang naar de woonkamer. De lichte doorzonwoonkamer is afgewerkt met een nette pvc-vloer, strakke wanden en plafonds. De begane grond is bovendien voorzien van vloerverwarming. Aan de voorzijde bevindt zich het gezellige zitgedeelte, terwijl aan de achterzijde ruimte is voor de eethoek met aansluitend de halfopen keuken.
De luxe (woon)keuken, is volledig in stijl vernieuwd (2025). De keuken heeft een moderne uitstraling en is praktisch ingedeeld met een fraai kookeiland als centraal middelpunt. Deze is uitgevoerd met een inductiekookplaat met geïntegreerde afzuiging, een Quooker-kraan en daarnaast beschikt de keuken over diverse inbouwapparatuur, waaronder een grote koelkast (+/- 318 liter), vriezer, vaatwasser en combi-oven. Door de open verbinding met de leefruimte is dit een fijne plek om te koken en tegelijk in contact te blijven met gezin of gasten.
Eerste verdieping
Op de eerste verdieping kom je uit op de overloop, die toegang geeft tot de verschillende vertrekken. Deze verdieping is, net als de begane grond, volledig gerenoveerd en afgewerkt in een moderne en verzorgde stijl.
Er zijn drie goed bruikbare slaapkamers aanwezig. De grootste slaapkamer bevindt zich aan de achterzijde en biedt een ruime en rustige opzet. De tweede slaapkamer ligt aan de voorzijde en is eveneens van prettig formaat. De derde kamer is ideaal te gebruiken als kinder-, werk- of logeerkamer.
De badkamer is luxe uitgevoerd en heeft een eigentijdse, warme uitstraling. Hier vind je een stijlvol houten wastafelmeubel met opbouwkom, een ruime inloopdouche en comfortabele vloerverwarming. Dankzij het raam komt er prettig daglicht binnen en is natuurlijke ventilatie mogelijk. Extra praktisch is het separate toilet op deze verdieping, wat zorgt voor extra comfort in het dagelijks gebruik.
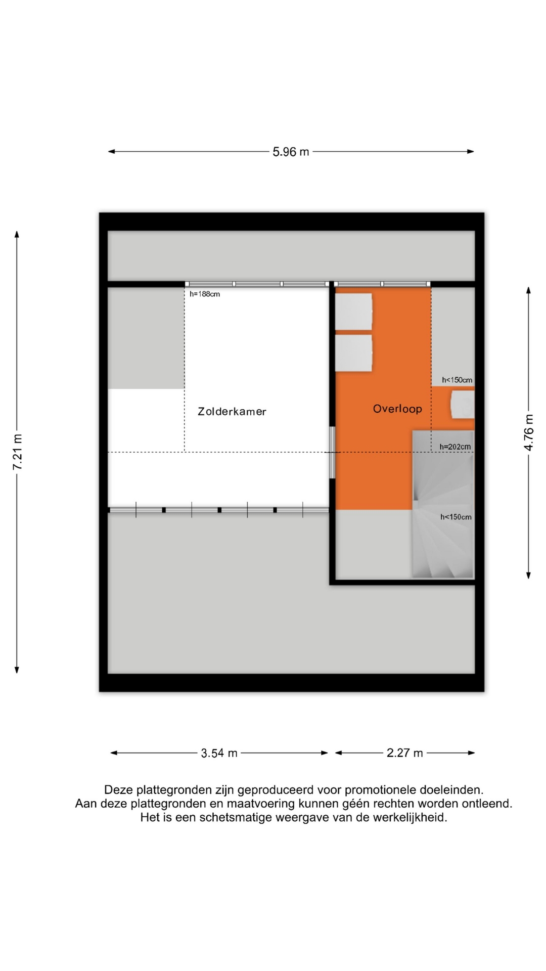
Tweede verdieping
Via een vaste trap is de tweede verdieping bereikbaar en biedt veel mogelijkheden. Op de overloop bevinden zich de cv-ketel (Remeha Tzerra Ace 2020) en de wasmachineaansluitingen. Deze ruimte is uitstekend te gebruiken als slaap-, werk-, hobby- of logeerruimte.
Tuin
Via de keuken is de achtertuin bereikbaar. De tuin is verzorgd aangelegd en biedt een fijne combinatie van terras, groen en looppad naar achteren. Achterin de tuin bevindt zich de garage, wat zorgt voor extra bergruimte en praktische gebruiksmogelijkheden.
Bijzonderheden
- LET OP! Volgens het meest recente meetrapport wordt de tweede verdieping aangemerkt als overige inpandige ruimte en niet als gebruiksoppervlakte wonen. De reden hiervoor is dat het oppervlak met een hoogte van meer dan 2 meter onvoldoende groot is. In de presentatie van de woning zijn deze metrages wel gezamenlijk opgenomen.
- Bouwjaar: ca. 1969.
- De woning is volledig gerenoveerd (2024) op de begane grond en eerste verdieping.
- 86 m² woonoppervlakte; de tweede verdieping is hierin niet meegerekend vanwege de beperkte stahoogte, maar is wel goed bruikbaar als extra slaap-, werk- of hobbyruimte.
- 287 m² perceeloppervlakte.
- Definitief energielabel C aanwezig.
- De elektronische-, tapwater- en verwarmingsinstallatie zijn vernieuwd (2024).
- Verwarming en warm water middels een CV combi-ketel (Remeha Tzerra Ace 2020).
- Vloerverwarming aanwezig op begane grond en de badkamer.
- Achtertuin op het oosten, met achterom, een houten berging en garage
- Aanvaarding in overleg, op korte termijn mogelijk.
- Benieuwd naar uw financiële mogelijkheden? Wij verwijzen u graag naar onze hypotheekadviseur!
- Deze presentatie is met zorg samengesteld op basis van de beschikbare gegevens en informatie. Desondanks kunnen aan de inhoud van deze verkoop tekst geen rechten worden ontleend. Afmetingen, oppervlakten en andere details zijn indicatief en kunnen afwijken van de werkelijkheid. VC Makelaars B.V. is niet aansprakelijk voor eventuele fouten of onvolkomenheden in deze informatie.Benieuwd of dit jouw nieuwe thuis wordt? Maak snel een afspraak, we laten je deze fijne tussenwoning graag zien!
Kenmerken
| Algemeen | |
|---|---|
| Prijs | € 459.000,- k.k. |
| Status | Verkocht onder voorbehoud |
| Aangeboden sinds | 23 februari 2026 |
| Aanvaarding | In overleg |
| Bouw | |
| Soort woonhuis | Eengezinswoning |
| Bouwjaar | 1969 |
| Bouwvorm | Woonhuis |
| Soort dak | Zadeldak |
| Oppervlakten & inhoud | |
| Wonen | 105 m2 |
| Gebouwgebonden buitenruimte | 22 m2 |
| Perceel | 287 m2 |
| Inhoud | 361 m3 |
| Indeling | |
| Aantal kamers | 4 |
| Aantal slaapkamers | 3 |
| Aantal verdiepingen | 3 |
| Energie | |
| Energielabel | C |
| Verwarming | CV ketel, Gedeeltelijke vloerverwarming |
| Warm water | CV ketel |
| Buitenruimte | |
| Aantal tuinen | 2 |
| Hoofdtuin | Ja |
| Tuintype | Achtertuin |
| Ligging | Oosten |
| Achterom ingang | Ja |
| Hoofdtuin | Nee |
| Tuintype | Voortuin |
| Ligging | Westen |
| Achterom ingang | Nee |
| Garage | |
| Aantal garages | 1 |
| Type garage: | Vrijstaand steen |
| Oppervlakte: | 17 m2 |
| Capaciteit: | 1 |
| Voorzieningen: | Elektra |
| Parkeergelegenheid | |
| Aantal parkeerplaatsen | 1 |

