Omschrijving

Foto’s zeggen meer dan duizend woorden en deze woning bewijst dat direct!

Deze vrijstaande woning, aan de rand van Veenendaal, is een huis waar kwaliteit, comfort en verfijning samenkomen. Alles is doordacht ontworpen met zorg, harmonie en een hoog afwerkingsniveau. Binnen vormen de woonkamer en royale woonkeuken het warme hart van het huis. Het maatwerk interieur, de stijlvolle materialen en de rustige kleurstelling zorgen voor een sfeer die zowel luxe als uitnodigend aanvoelt.

Op de eerste verdieping vindt u drie comfortabele slaapkamers en een moderne badkamer, terwijl de tweede verdieping volledig is ingericht als een exclusieve master suite met eigen badkamer: een plek waar rust en ontspanning centraal staan. Ook op technisch vlak is dit wonen op topniveau met hoge isolatiewaarden, slimme domotica en airconditioning. Het hoogwaardige domoticasysteem vormt een belangrijk onderdeel van het wooncomfort; in de bijgevoegde video krijgt u een duidelijke toelichting op de werking en mogelijkheden ervan.

Alles is ingericht op energiezuinig wonen. De ligging maakt het geheel compleet: in een rustige wijk, aan de voet van de Utrechtse Heuvelrug en de Prattenburgse bossen. Ervaar het zelf hoe het is om thuis te komen op het hoogste niveau!

• Bouwjaar: 2024
• Perceel: 450 m²
• Woonoppervlakte: 195 m²
• Energielabel: A++++

Aanvaarding: in overleg. Snelle oplevering mogelijk.

Indeling

Aan het einde van de straat staat deze vrijstaande woning. Een rustige en fijne plek om te wonen! De voortuin met voldoende ruimte om twee auto's op eigen terrein te parkeren, de rustige uitstraling van de gevel en de overdekte entree in de zijgevel zorgen meteen al voor een moderne indruk.

De afwerking van deze woning is tot in detail verzorgd en straalt rust, kwaliteit en comfort uit. Op de begane grond en eerste verdieping ligt een fraaie PVC-visgraatvloer die zorgt voor een warme en stijlvolle basis. De strak gestucte wanden en plafonds versterken het moderne karakter, terwijl de hoge plinten het geheel een luxe en verzorgde uitstraling geven. Op zolder is gekozen voor een moderne gietvloer, die niet alleen praktisch en onderhoudsvriendelijk is, maar ook perfect aansluit bij de strakke en eigentijdse afwerking van de rest van de woning.

Comfort is hier vanzelfsprekend geïntegreerd. In alle ruimtes is vloerverwarming én vloerkoeling aanwezig, waardoor het binnenklimaat het hele jaar door aangenaam aanvoelt. De airconditioning met nano-filters draagt bij aan een gezond leefklimaat en zuivert de lucht van pollen en bacteriën. Met energielabel A++++ is de woning bovendien uitzonderlijk energiezuinig en volledig voorbereid op de toekomst. Hier gaan hoogwaardige materialen en slimme techniek hand in hand.

We komen de woning binnen en worden verwelkomd in een royale ontvangsthal waar ruimte en licht samenkomen. De trapopgang, die dankzij het aanwezige daglicht mooi doorloopt naar boven, geeft de hal een open en luchtig karakter. Hier ervaart u direct de zorg en aandacht waarmee de woning is afgewerkt. De toiletruimte is stijlvol geïntegreerd en alles straalt rust en kwaliteit uit.

Wanneer u via de elegante, in brons uitgevoerde taatsdeuren de woonkamer binnenstapt, ontvouwt zich een prachtige leefruimte met een warme, luxe uitstraling. De grote raampartijen aan de voorzijde laten het daglicht rijkelijk binnenstromen en zorgen voor een prettige verbinding met buiten. Het op maat gemaakte wandmeubel vormt een stijlvol middelpunt in de ruimte en benadrukt het moderne karakter van de woning. Dankzij de royale opzet is er volop ruimte voor een comfortabele zithoek waar u heerlijk kunt ontspannen.

Aan de achterzijde bevindt zich de leefkeuken die zonder twijfel het hart van het huis vormt. Hier komt design samen met functionaliteit. Het werkblad van Pure Kwartsiet geeft de keuken een exclusieve uitstraling en voelt robuust én verfijnd tegelijk. Koken wordt hier een beleving dankzij de Bora inductiekookplaat met geïntegreerde afzuiging en de overige inbouwapparatuur zoals de ovens, inbouw koffiemachine, grote koelkast, vriezer en vaatwasser zijn van de bekende merken Miele en Siemens. Alles is tot in detail op elkaar afgestemd. De royale opstelling biedt meer dan voldoende ruimte voor een grote eettafel, waar lange avonden met familie en vrienden vanzelfsprekend worden. Via de openslaande deuren loopt u zo het terras op, waardoor binnen en buiten op natuurlijke wijze in elkaar overvloeien.

Subtiel weggewerkt achter een strakke deur in de rechte keukenstelling bevindt zich de praktische bijkeuken met extra bergruimte en aansluitingen voor huishoudelijke apparatuur. Aansluitend ligt een extra kamer die zich moeiteloos laat aanpassen aan uw wensen: een rustige thuiswerkplek, een hobbyruimte of een fijne speelkamer. Juist deze flexibiliteit maakt de woning niet alleen stijlvol, maar ook bijzonder praktisch.

Eerste verdieping

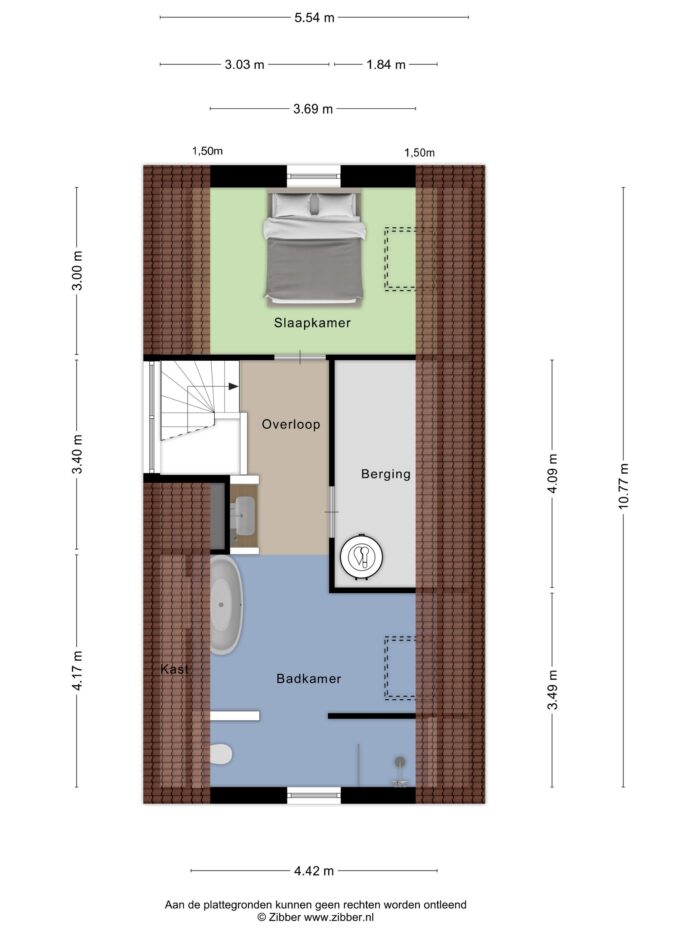
Via de vaste trap bereiken we de overloop van de eerste verdieping, waar direct duidelijk wordt dat de hoogwaardige afwerking van de begane grond hier naadloos wordt voortgezet. De combinatie van strakke lijnen, donkere accenten en de stijlvolle vloer zorgt voor een rustige en elegante uitstraling. Dankzij de aanwezige vloerverwarming én -koeling is het hier het hele jaar door aangenaam comfortabel. Vanaf de overloop heeft u toegang tot drie slaapkamers en de badkamer. De drie ruime slaapkamers zijn met zorg ingericht en voorzien van maatwerk kasten en geïntegreerde bureaus, waardoor functionaliteit en design hand in hand gaan. Daarnaast zijn deze kamers uitgerust met airconditioning en screens, zodat ook tijdens warme zomerdagen een optimaal binnenklimaat gegarandeerd is. De derde kamer is ingericht als stijlvolle walk-in-closet. Hier komt maatwerk volledig tot zijn recht: strak vormgegeven kastenwanden bieden volop opbergruimte en geven de ruimte een hotelwaardige sfeer. Uiteraard kan deze kamer desgewenst ook als slaapkamer of werkruimte worden gebruikt.

De badkamer vormt een waar wellnessmoment in huis. De ruimte is volledig betegeld met grote, luxe wand- en vloertegels. De royale inloopdouche met glazen wand en regendouche nodigt uit tot ontspannen. Het dubbele wastafelmeubel met spiegel biedt comfort en ruimte, terwijl de geïntegreerde Sonos speaker zorgt voor uw favoriete muziek tijdens de ochtendroutine of een ontspannen avond. Separaat van de badkamer bevindt zich een moderne toiletruimte met zwevend toilet, uitgevoerd in dezelfde hoogwaardige stijl als de rest van de verdieping.

Ook hier geldt: alles klopt. Afwerking, comfort en maatwerk komen samen in een verdieping die niet alleen praktisch is, maar vooral voelt als een verlengstuk van de luxe benedenverdieping.

Tweede verdieping

De tweede verdieping is ingericht als een volwaardig en luxe ouderverblijf. Hier gaan slapen en ontspannen moeiteloos in elkaar over. De ruime slaapkamer onder de kap heeft een rustige uitstraling en wordt prachtig verlicht door de aanwezige ramen. Aansluitend bevindt zich de open wellnessruimte met een vrijstaand bad als stijlvol middelpunt, een inloopdouche met luxe afwerking, een dubbele wastafel en een toilet. De combinatie van lichte tinten met donkere marmerlook accenten en warm koperkleurig sanitair geeft het geheel een krachtige en elegante sfeer. Bovendien is er een voorbereiding getroffen voor het plaatsen van een sauna, zodat u hier eenvoudig uw eigen spa kunt realiseren.

Op de overloop is een maatwerk kastenwand met verlichting ingebouwd en in de separate technische ruimte bevinden zich de Atlantic warmtepomp, het WTW-systeem en extra bergruimte. Een verdieping die aanvoelt als een privé suite; comfortabel, stijlvol en volledig gericht op ontspanning.

Tuin

Rondom de woning ligt een verzorgde, groene tuin waar vrijheid en ruimte samen gaat met een fijn terras om te ontspannen of uitgebreid te tafelen met familie en vrienden. Dankzij de gunstige ligging geniet u hier de hele dag van de zon. In de ochtend valt het licht prachtig over het gazon en in de middag en avond is het terras een heerlijke plek om nog lang buiten te zitten. De groene hagen rondom bieden privacy en creëren de nodige beschutting. Het terras grenst direct aan de heerlijke woonkeuken, waardoor binnen en buiten naadloos in elkaar overlopen. De combinatie van het warme metselwerk, de donkere houten gevelaccenten en het ruime perceel geeft het geheel een moderne, maar tegelijkertijd uitnodigende uitstraling. Aan de voorzijde beschikt de woning over een eigen oprit met plaats voor twee auto’s en een laadpaal. Subtiele buitenverlichting zorgt ervoor dat de woning en tuin ook in de avonduren sfeervol tot hun recht komen.

Bijzonderheden

Deze presentatie is met zorg samengesteld op basis van de beschikbare gegevens en informatie. Desondanks kunnen aan de inhoud van deze verkoop tekst geen rechten worden ontleend. Afmetingen, oppervlakten en andere details zijn indicatief en kunnen afwijken van de werkelijkheid. VC Makelaars B.V./Diepeveen Makelaars B.V. is niet aansprakelijk voor eventuele fouten of onvolkomenheden in deze informatie.

Omschrijving Kenmerken Media Plattegronden Map

Kenmerken

Algemeen
Prijs€ 1.195.000,- k.k.
StatusBeschikbaar
Aangeboden sinds28 januari 2026
AanvaardingDirect
Bouw
Soort woonhuisEengezinswoning
Bouwjaar2024
BouwvormWoonhuis
Soort dakDwarskap
Oppervlakten & inhoud
Wonen196 m2
Perceel450 m2
Inhoud726 m3
Indeling
Aantal kamers6
Aantal slaapkamers4
Aantal verdiepingen3
Energie
EnergielabelA++++
VerwarmingAirconditioning, Vloerverwarming, Warmtepomp, Warmte terugwin installatie
Warm waterElektrische boiler (eigendom)
Buitenruimte
Aantal tuinen3
HoofdtuinJa
TuintypeAchtertuin
LiggingNoordwest
Achterom ingangNee
HoofdtuinNee
TuintypeZijtuin
LiggingNoordoost
Achterom ingangNee
HoofdtuinNee
TuintypeVoortuin
LiggingZuidoost
Achterom ingangNee
Parkeergelegenheid
Aantal parkeerplaatsen2
vcmakelaars 10

"Ik kan niet anders dan positief zijn over VC Makelaars. De communicatie was erg prettig, afspraken werden altijd nagekomen en ze hebben duidelijk verstand van zaken. Omdat dit onze eerste keer was dat we een huis hebben verkocht was het een spannend proces met veel vragen. We werden van begin tot eind goed begeleid en er werd snel antwoord gegeven op onze vragen. Met uiteindelijk een mooi resultaat tot gevolg!"

Hisveltplein 92, Arnhem
vcmakelaars 9.5

“Prettige begeleiding, lekkere korte lijnen en actief met elkaar bespreken wat de mogelijkheden zijn. Zeker een aanbeveling waard!”

Eenvoudlaan 54, Veenendaal
vcmakelaars 9.8

“Enorm goed begeleid in het verkoop proces! VC makelaars zijn goed bereikbaar voor vragen en altijd bereid te helpe.”

Goudvink 109, Veenendaal
vcmakelaars 10

“Wij hebben een goede ervaring. Communicatie was helder en duidelijk. Na bezichtiging ontvingen we meteen een app hoe het verlopen was. Bij vragen onmiddellijk antwoord. Kortom zeer tevreden."

Linnaeuslaan 89, Veenendaal
vcmakelaars 10

"Zeer tevreden over de verkoop. Binnen drie weken verkocht. Goede presentatie, goed bereikbaar, direct handelen."

Veenraden 163, Veenendaal
vcmakelaars 10

"Gert en zijn team hebben ons uitstekend begeleid tijdens het hele verkooptraject. De communicatie was vanaf het eerste moment snel, duidelijk en heel prettig. Ze denken actief mee, komen met sterke ideeën en nemen echt de tijd om samen naar het beste resultaat toe te werken.Dankzij hun aanpak was onze woning snel en tegen goede voorwaarden verkocht. We raden VC Makelaars dan ook van harte aan. Het is een betrokken team dat prettig in de omgang is, snel schakelt en precies weet wat er speelt in de lokale markt. Absoluut een aanrader!"

Rossiniweg 53, Veenendaal
vcmakelaars 9.5

"Zowel Gert als Wessel hebben ons enorm geholpen in het maken van beslissingen waar we voor kwamen te staan. Er is alles uit de kast gehaald om een voor ons tevreden afhandeling plaats te laten vinden. Ze hebben lokale marktkennis en geven goede adviezen. We raden hen ten zeerste aan!"

Buitenhuishof 19, Veenendaal
vcmakelaars 10

"Van bezichtiging tot en met het tekenen van de notaris erg betrokken geweest. Heel fijn team van VC om mee samen te werken. Voor alle vragen binnen zeer korte tijd antwoord en een goede begeleiding!"

Prins Willem-Alexanderpark 579, Veenendaal
vcmakelaars