Omschrijving
NIEUWE MOGELIJKHEDEN | NU MET GROTER PERCEEL EN SCHUUR!
Landelijk wonen met nieuwbouwcomfort. In het buitengebied van Ede (op korte afstand van Veenendaal) verrijst deze twee-onder-een-kapwoning op een riant perceel van 1.028 m² en een bestaande garage/schuur met volop mogelijkheden, denk hierbij aan MANTELZORG* en/of gewoon een heerlijk ruime schuur met ruimte voor 4 auto’s, hobby’s en/of als kantoorruimte bij huis. Hier worden dromen werkelijkheid!
Vrijheid, ruimte en uitzicht zijn hier voelbaar: vanuit de woonkamer kijk je uit over de weilanden en natuurgebied De Groene Grens ligt praktisch om de hoek.
De woning wordt gebouwd onder BouwGarant en is ontworpen met oog op de toekomst: voorlopig energielabel A+++. Warmtepomp, triple glas en de aanwezigheid van enkele zonnepanelen zorgen voor comfortabel wonen en lage energielasten.
En dan het buitenleven… Dit is zo’n plek waar je ’s avonds nog even een rondje door je eigen tuin loopt. BBQ met vrienden, een moestuin, speelruimte voor de kids, een vuurkorfplek of een klein weilandje met hobbydieren: hier kan het. En het mooiste? Je kunt de woning en het perceel naar eigen wens afbouwen en inrichten.
De uitgestrekte bossen van de Utrechtse Heuvelrug, maar ook de heide en bossen van Ede liggen op fietsafstand. Stap op de fiets voor een ontspannen tocht door het groen!
Of u nu houdt van levendigheid of juist de rust opzoekt, deze plek biedt het allebei. En dat in een duurzame, energiezuinige woning die helemaal klaar is voor de toekomst.
Bent u klaar om uw woondromen waar te maken? Neem vandaag nog contact met ons op en ontdek wat deze bijzondere nieuwbouwwoning u te bieden heeft!
*Opties tot MANTELZORG verkennen we graag indien daar specifieke belangstelling voor is.
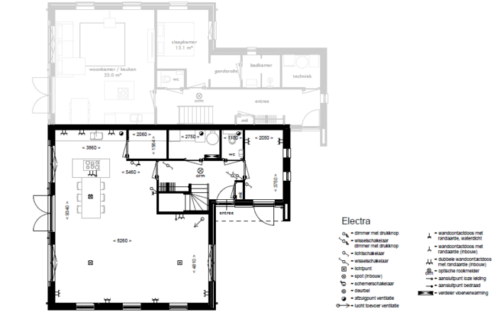
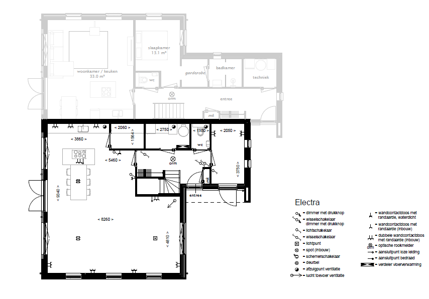
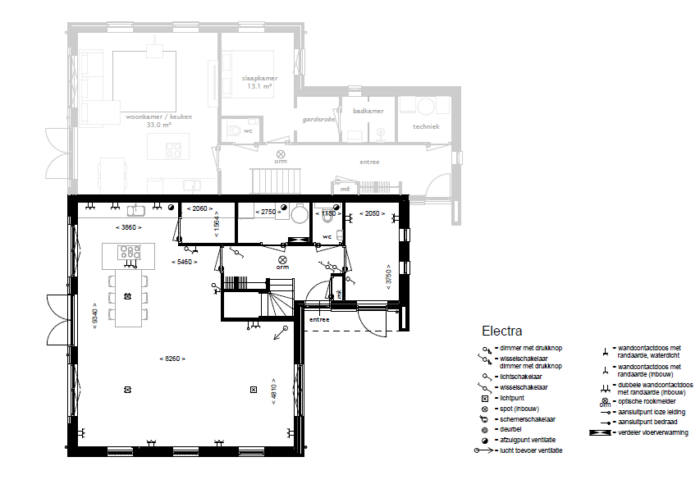
Indeling
We stappen binnen via de entree/hal. Aan uw rechterhand vindt u direct de meterkast. Praktisch is ook de fietsenberging: met een eigen entree naast de voordeur en intern verbonden met de ontvangsthal. Ideaal voor fietsen, kinderwagen of gewoon: alles wat u graag uit het zicht houdt, maar wél binnen handbereik wilt hebben.
Verder treft u in de hal de toiletruimte, een nette garderobenis en de technische ruimte. Alles klopt: logisch ingedeeld, overzichtelijk en klaar om op uw manier af te werken.
En dan lopen we door naar de royale living. Hier komt het buitengebied echt binnen. De ruimte biedt alle plek voor een comfortabele zithoek en een fijne keukenopstelling: koken, lunchen, naborrelen; het kan hier moeiteloos naast elkaar bestaan. Naar hartenlust richt u dit hart van het huis precies zo in als u het voor u ziet.
Vanuit de keuken/woonkamer merkt u het direct: u woont hier heerlijk landelijk. Het uitzicht over de weilanden is rustgevend en elke dag anders. De openslaande tuindeuren maken de verbinding tussen binnen en buiten bijna vanzelfsprekend. Even naar buiten, een kop koffie op het terras, de avondzon meepakken… dat buitenleven ligt hier letterlijk aan uw voeten.
En binnen? Daar is het minstens zo comfortabel, met vloerverwarming die het huis een rustige, aangename warmte geeft.
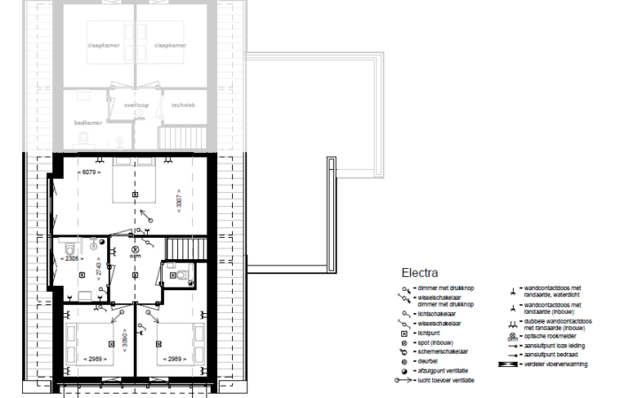
Eerste verdieping
Via de trap bereiken we de overloop, het centrale punt van deze verdieping. Vanaf hier zijn alle ruimtes prettig en logisch toegankelijk: drie slaapvertrekken, de badkamer en een separate toiletruimte.
Die aparte toiletruimte is een fijne luxe en maakt deze verdieping extra comfortabel, zeker voor een gezin of wanneer u gasten ontvangt.
De drie slaapkamers zijn stuk voor stuk volwaardig en multifunctioneel in te delen: als hoofdslaapkamer, kinderkamer, werkkamer of logeerkamer. De master bedroom springt eruit en profiteert van de dakkapel, wat zorgt voor extra ruimte, licht en een prettig gevoel van vrijheid.
Ook de badkamer is voorzien van een dakkapel, wat niet alleen extra daglicht oplevert, maar ook meer indelingsmogelijkheden. Hier zijn een douche, wastafelmeubel en een toilet realiseerbaar – helemaal naar eigen smaak en stijl af te werken.
Een verdieping die rust en comfort uitstraalt, met slimme keuzes in indeling en volop mogelijkheden om er echt uw eigen plek van te maken. Uiteraard ook voorzien van vloerverwarming.
Bijzonderheden
- Bouw start in overleg, eerste/tweede kwartaal 2026 mogelijk
- Aannemersbedrijf Randewijk, wordt gebouwd met BouwGarant
- Meer ruimte nodig? Er is een bestaande schuur van ca. 88 m² ; ideaal voor opslag, hobby, werkruimte bij huis en/of tot verkenning van MANTELZORG mogelijkheden.
- Perceelsgrootte, 1.028 m²
- Warmtepomp NIBE F2050-6
- Vloerverwarming (laagtemperatuur) + mogelijkheid tot koelen
- Balansventilatie met WTW (CO₂-gestuurd, Zehnder Q450)
- Triple beglazing
- 16 PV-panelen (op de bestaande schuur, met doorlus naar uw nieuw te bouwen woning
- Een plek om echt te landen. Koffie in de ochtendzon, lange avonden buiten, kinderen die alle ruimte hebben, een eigen groentetuin of een hoekje met hobbydieren. Dit is “thuis” met een hoofdletter T
- Deze presentatie is met zorg samengesteld. Afmetingen, oppervlakten en gegevens zijn indicatief; aan de inhoud kunnen geen rechten worden ontleend.
Kenmerken
| Algemeen | |
|---|---|
| Prijs | € 970.000,- v.o.n. |
| Status | Beschikbaar |
| Aangeboden sinds | 13 juni 2025 |
| Aanvaarding | In overleg |
| Bouw | |
| Soort woonhuis | Eengezinswoning |
| Bouwjaar | 2026 |
| Bouwvorm | Woonhuis |
| Soort dak | Zadeldak |
| Oppervlakten & inhoud | |
| Wonen | 148 m2 |
| Gebouwgebonden buitenruimte | 87 m2 |
| Perceel | 1.028 m2 |
| Inhoud | 587 m3 |
| Indeling | |
| Aantal kamers | 4 |
| Aantal slaapkamers | 3 |
| Aantal verdiepingen | 2 |
| Energie | |
| Energielabel | A+++ |
| Verwarming | Warmtepomp |
| Buitenruimte | |
| Aantal tuinen | 1 |
| Hoofdtuin | Ja |
| Tuintype | Tuin rondom |
| Ligging | Noordoost |
| Achterom ingang | Nee |
| Garage | |
| Aantal garages | 1 |
| Type garage: | Vrijstaand steen |
| Oppervlakte: | 87 m2 |
| Capaciteit: | 4 |
| Voorzieningen: | Elektra |
| Parkeergelegenheid | |
| Aantal parkeerplaatsen | 4 |

